GM Service Manual Online
For 1990-2009 cars only
Makes
🢒
Chevrolet
🢒
2005
🢒
Uplander Ext.
🢒 Brake Warning System Schematics
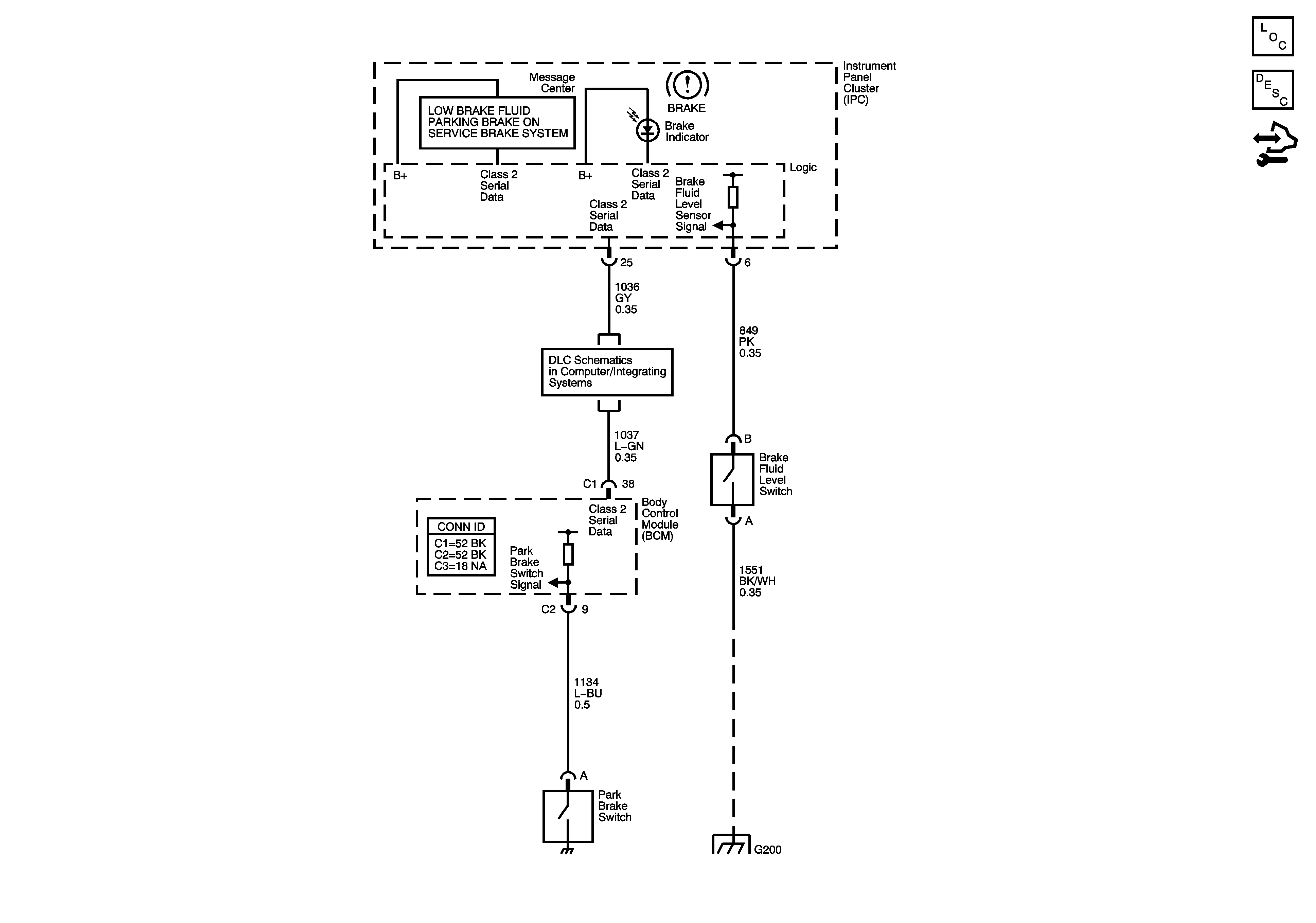
Brake Warning System Schematics
Master Electrical Component List
Brake Warning System Description and Operation
Control Module References
DLC Schematics
G200 2 of 2