GM Service Manual Online
For 1990-2009 cars only
Makes
🢒
Chevrolet
🢒
2007
🢒
Vivant
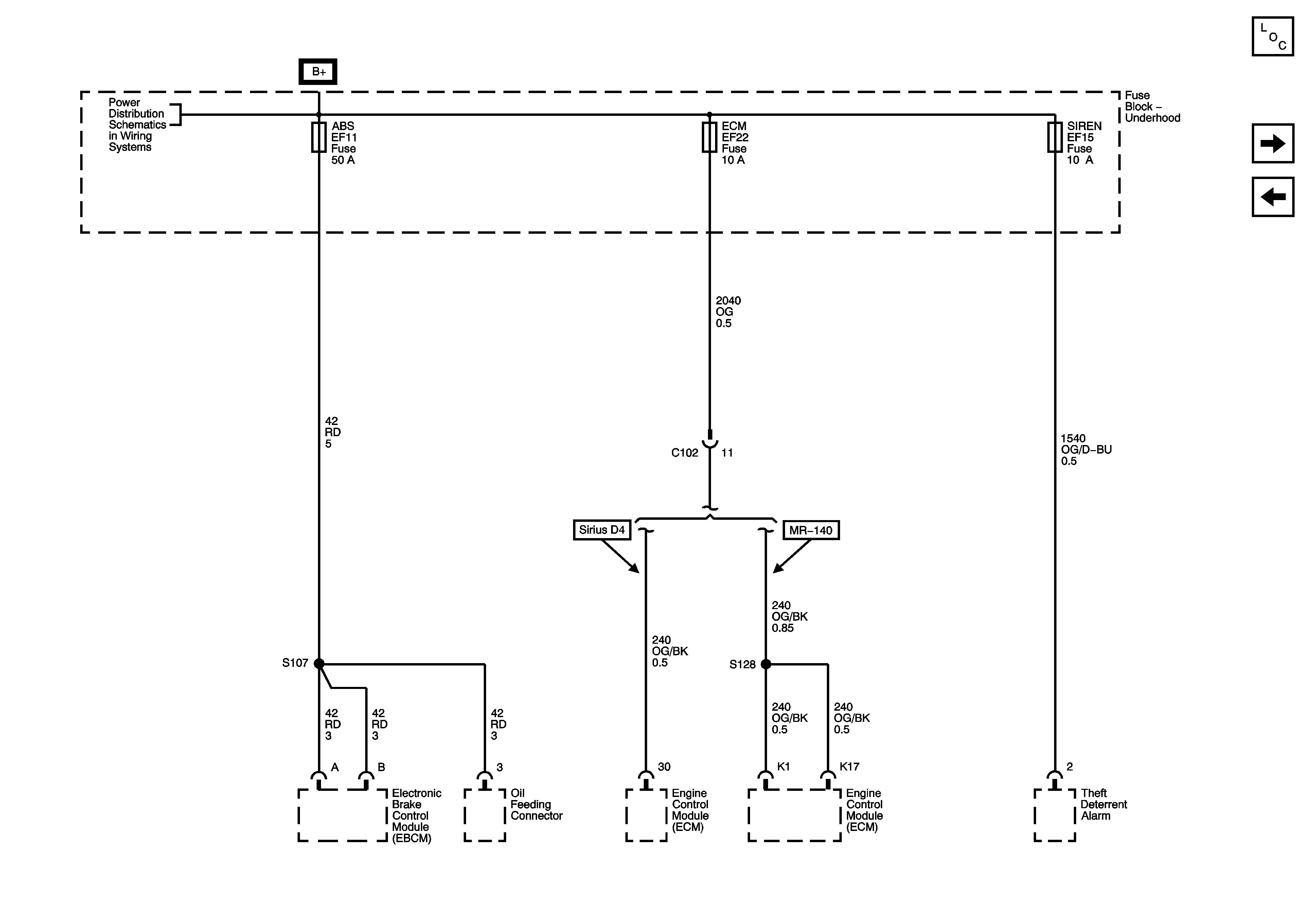
🢒 ABS, ECM and SIREN Fuses
ABS, ECM and SIREN Fuses
ABS, ECM, and SIREN Fuses
Master Electrical Component List
PARKING LAMP LH, PARKING LAMP RH Fuses, PARKING LAMP Relay
Underhood Fuse Block - Battery Feeds