GM Service Manual Online
For 1990-2009 cars only
Makes
🢒
Daewoo
🢒
2008
🢒
G2X
🢒
Transmission/Transaxle
🢒
Automatic Transmission - 5L40-E/5L50-E
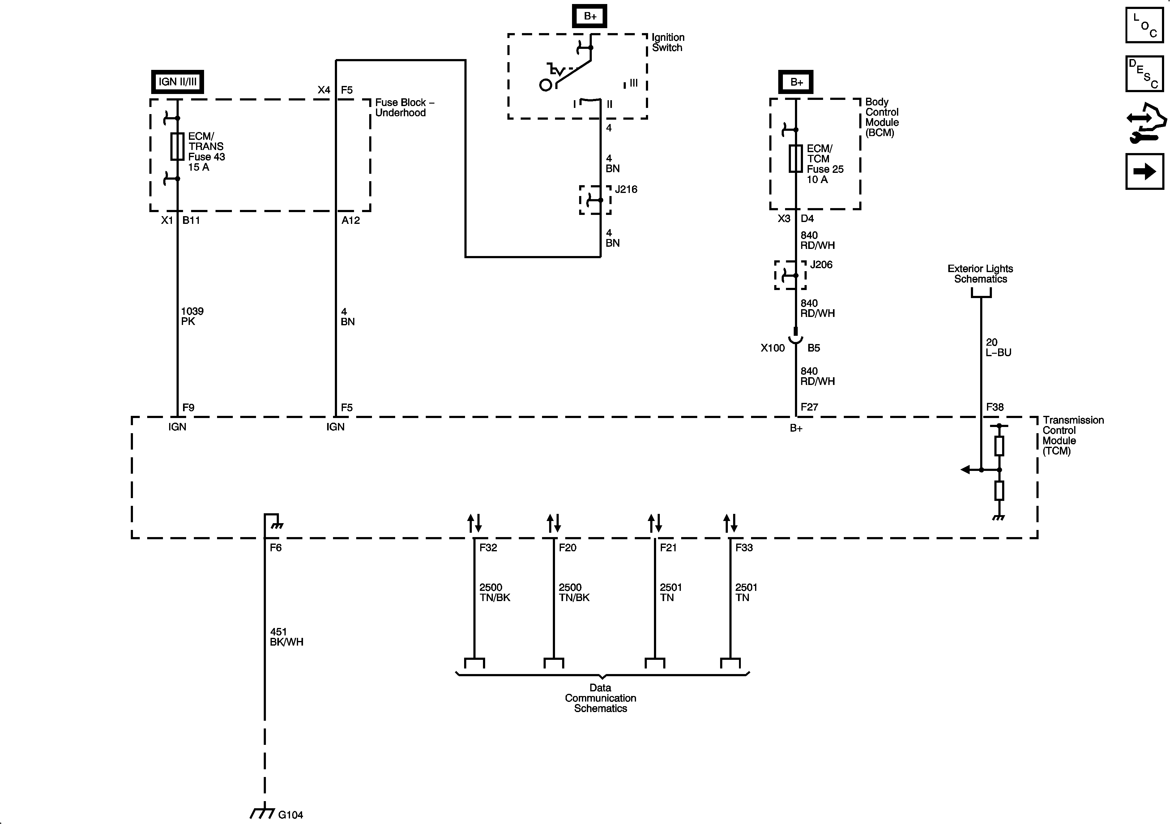
🢒 Automatic Transmission Controls Schematics
Figure
1:
DLC, Ground, MIL, and Power
Master Electrical Component List
Transmission Component and System Description
Control Module References
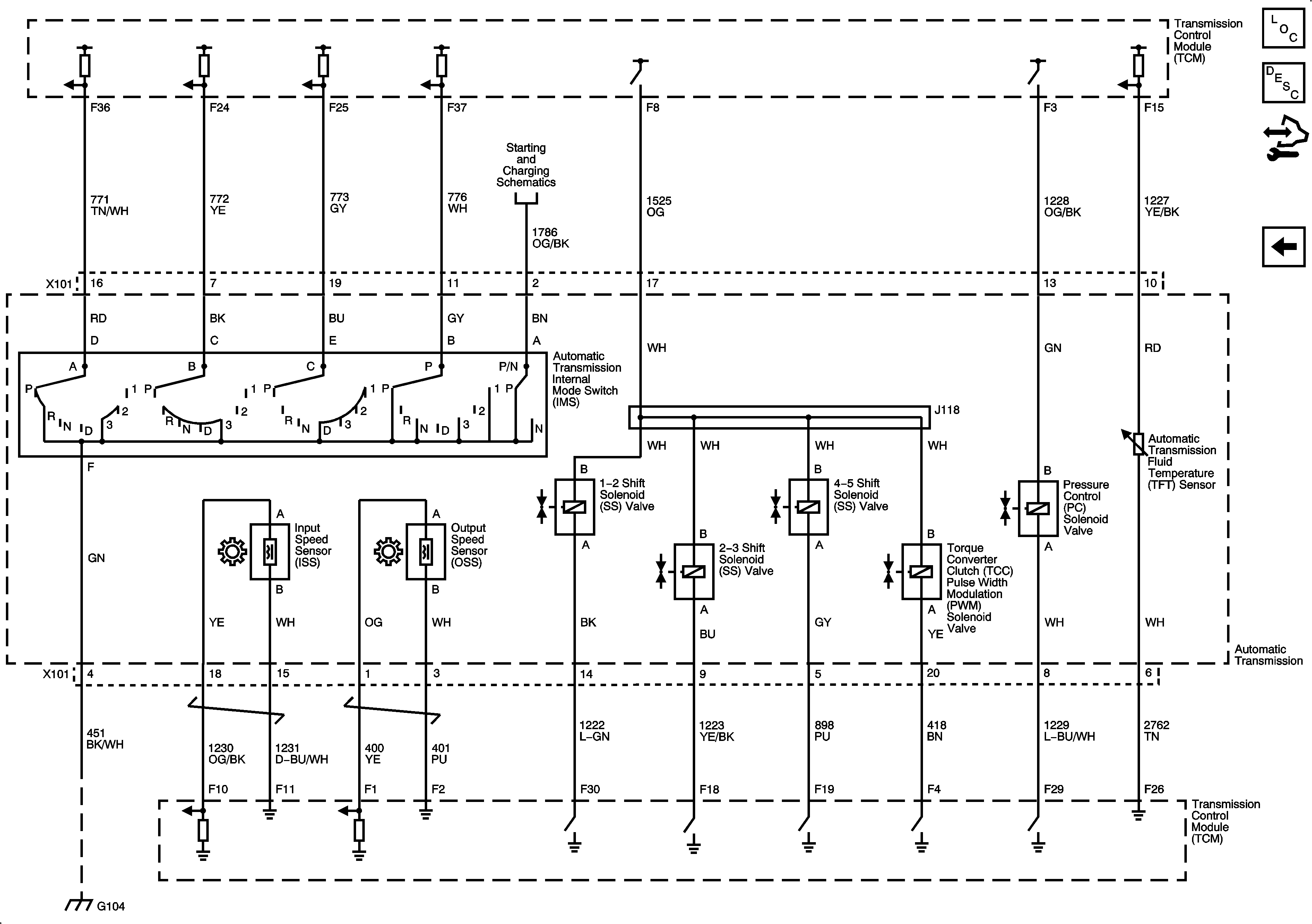
Shift Solenoids, TFT and VSS
Figure
2:
Shift Solenoids, TFT, and VSS
Master Electrical Component List
Transmission Component and System Description
Control Module References
DLC, Ground, MIL, and Power
Figure
3:
Electronic PRNDL
Master Electrical Component List
Transmission Component and System Description
Control Module References
Sensors and Switches