GM Service Manual Online
For 1990-2009 cars only
Makes
🢒
Daewoo
🢒
2008
🢒
G2X
🢒 Sensors and Switches
Sensors and Switches
Sensors and Switches
Master Electrical Component List
Indicator/Warning Message Description and Operation
Control Module References
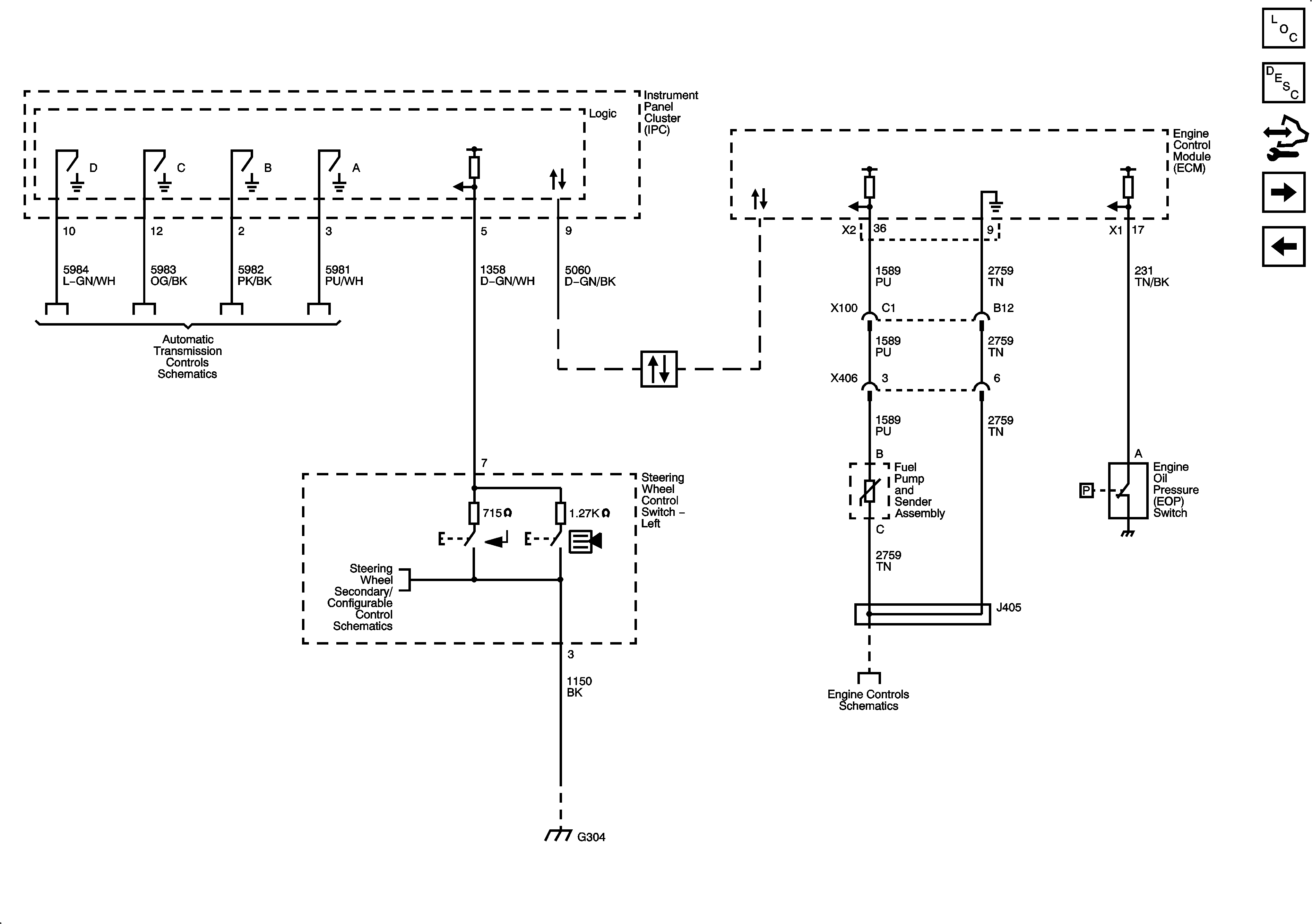
Electronic PRNDL
Instrument Cluster Schematics