GM Service Manual Online
For 1990-2009 cars only
Makes
🢒
Generic
🢒
2003
🢒
Unit Repair
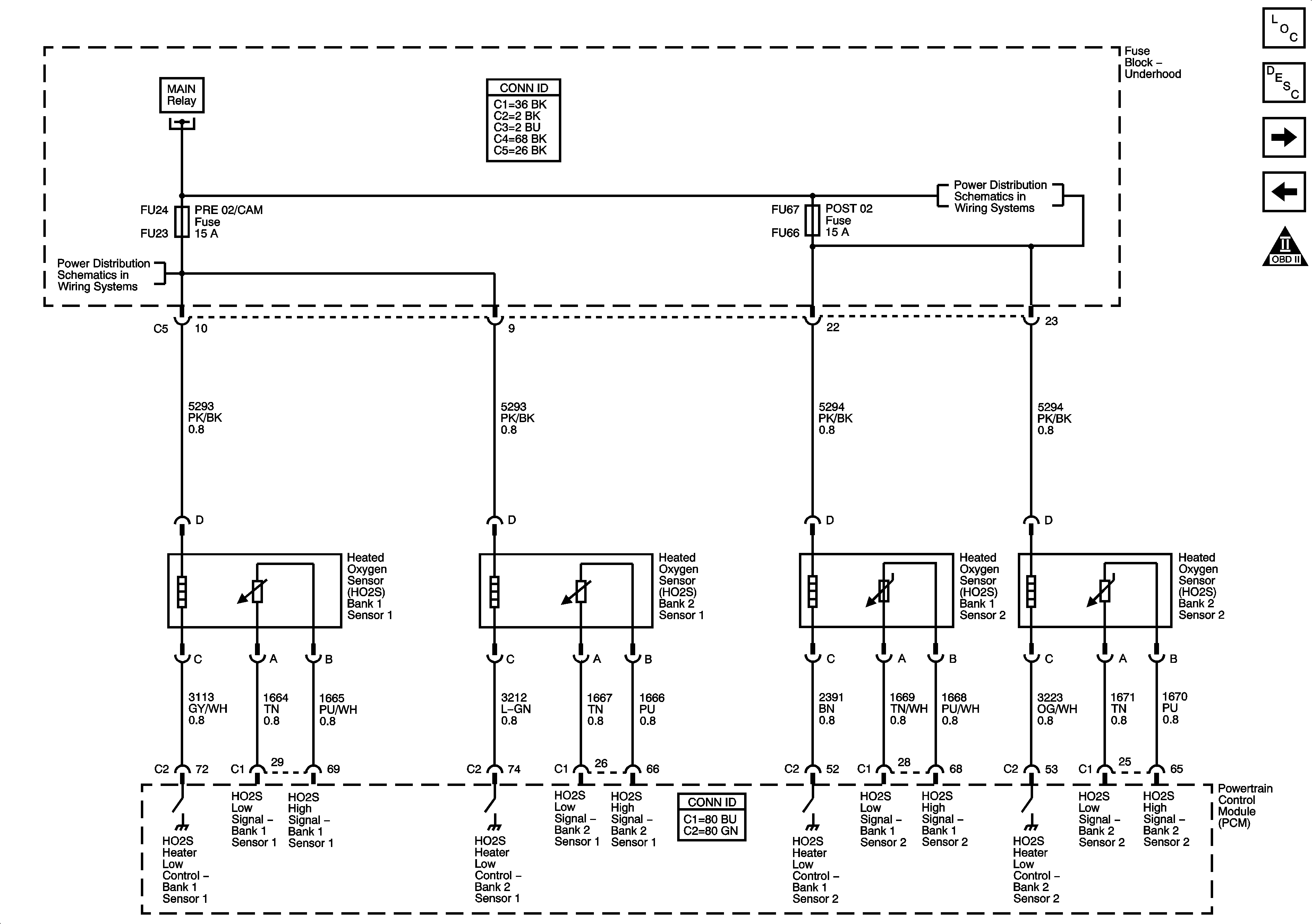
🢒 Engine Data Sensors - Heated Oxygen Sensors (HO2S)
Engine Data Sensors - Heated Oxygen Sensors (HO2S)
Engine Data Sensors - Heated Oxygen Sensors (HO2S)
Master Electrical Component List
Powertrain Control Module Description
Engine Data Sensors - Throttle Actuator Control (TAC) System
Engine Data Sensors - MAP, ECT, MAF and IAT Sensors (LS6)
OBD II Symbol Description Notice
Power, Ground, Serial Data, DIC and Indicator (LS6)
Underhood Fuse Block PRE O2/CAM Fuse
Underhood Fuse Block POST O2 Fuse
Underhood Fuse Block PRE O2/CAM Fuse