GM Service Manual Online
For 1990-2009 cars only
Makes
🢒
HUMMER
🢒
2007
🢒
H2
🢒
Diagnostic Navigation
🢒
Vehicle Diagnostic Information
🢒 SIR Schematics
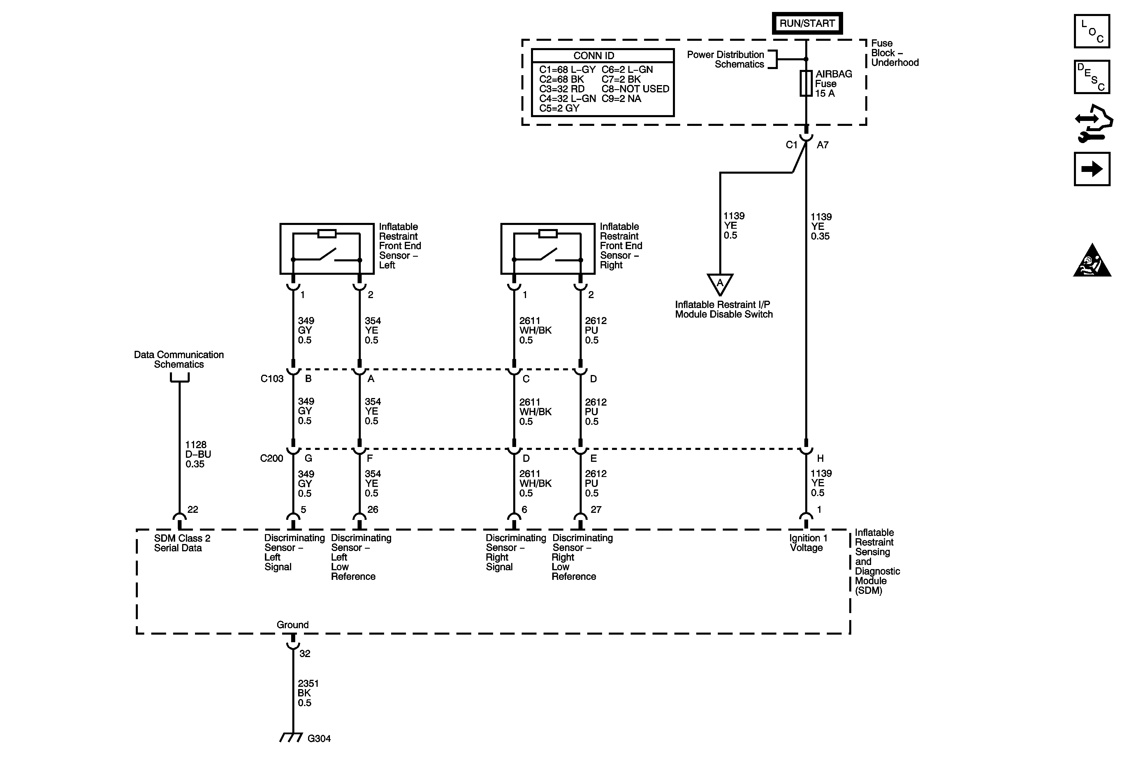
Figure
1:
Power, Ground, Serial Data, and Sensors
Master Electrical Component List
SIR System Description and Operation
Control Module References
Driver and Passenger Modules and Disable Switch
SIR Schematic Icons
SP206 and SP207
IGN E, SEO IGN, and SIR Fuses
Driver and Passenger Modules and Disable Switch
Figure
2:
Driver and Passenger Modules and Disable Switch
Master Electrical Component List
SIR System Description and Operation
Control Module References
Power, Ground, Serial Data, and Sensors
SIR Schematic Icons
SIR Schematic Icons
SIR Schematic Icons
SIR Schematic Icons
Power, Ground, Serial Data, and Sensors
INT PARK Fuses
Instrument Panel Dimming - 3 of 5
G203 - 1 of 3