GM Service Manual Online
For 1990-2009 cars only
Makes
🢒
HUMMER
🢒
2007
🢒
H2
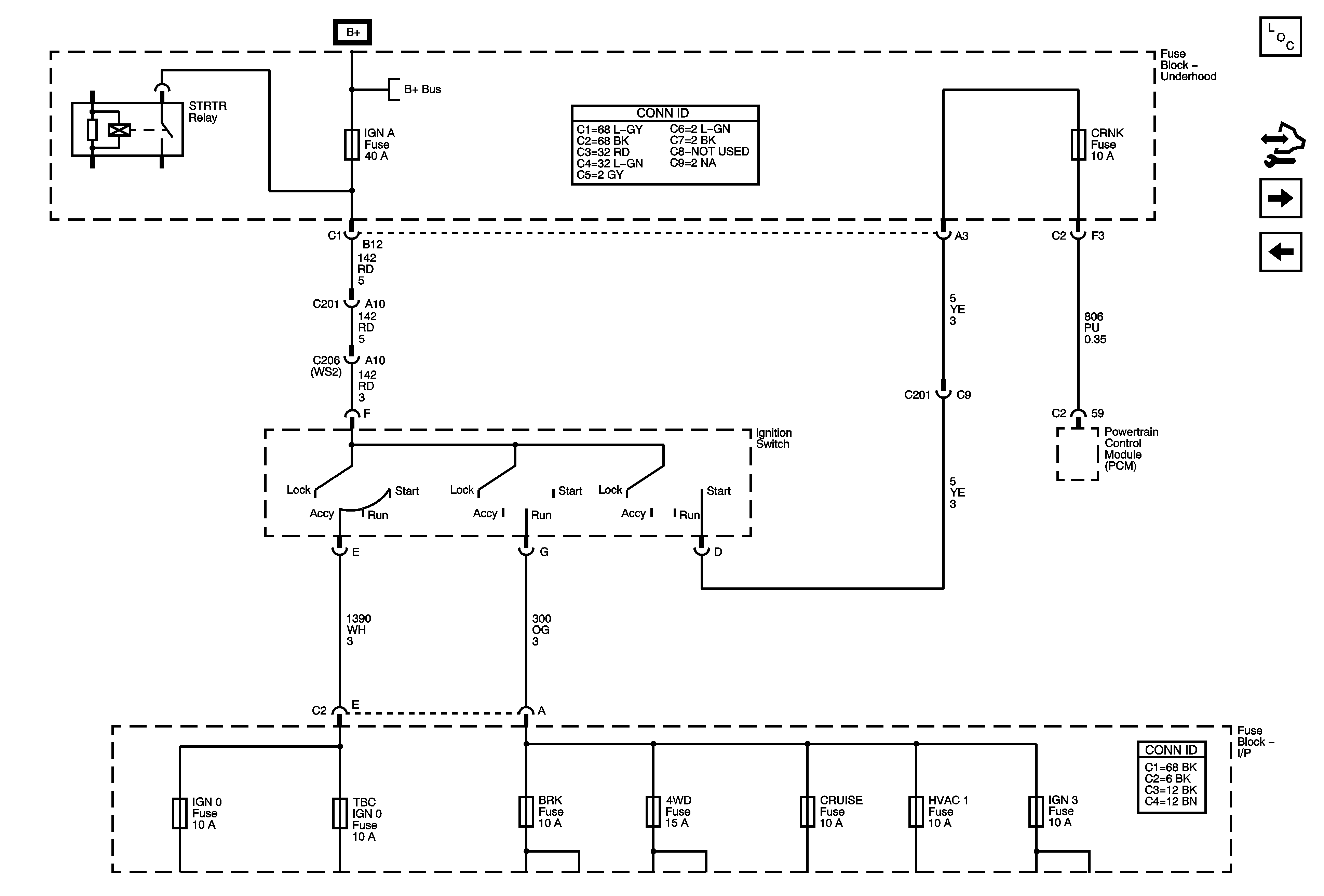
🢒 Ignition Switch - ACY/RUN/START, RUN and Start Bus Bars, and CRANK and IGN A Fuses
Ignition Switch - ACY/RUN/START, RUN and Start Bus Bars, and CRANK and IGN A Fuses
Ignition Switch - ACCY/RUN/START, RUN, and START Bus Bars, and CRANK and IGN A Fuses
Master Electrical Component List
Control Module References
Ignition Switch - ACCY/RUN and RUN/START Bus Bars, and IGN B Fuse
INT PARK Fuses
B+ Bus