GM Service Manual Online
For 1990-2009 cars only
Makes
🢒
Isuzu
🢒
2007
🢒
Ascender - 2WD
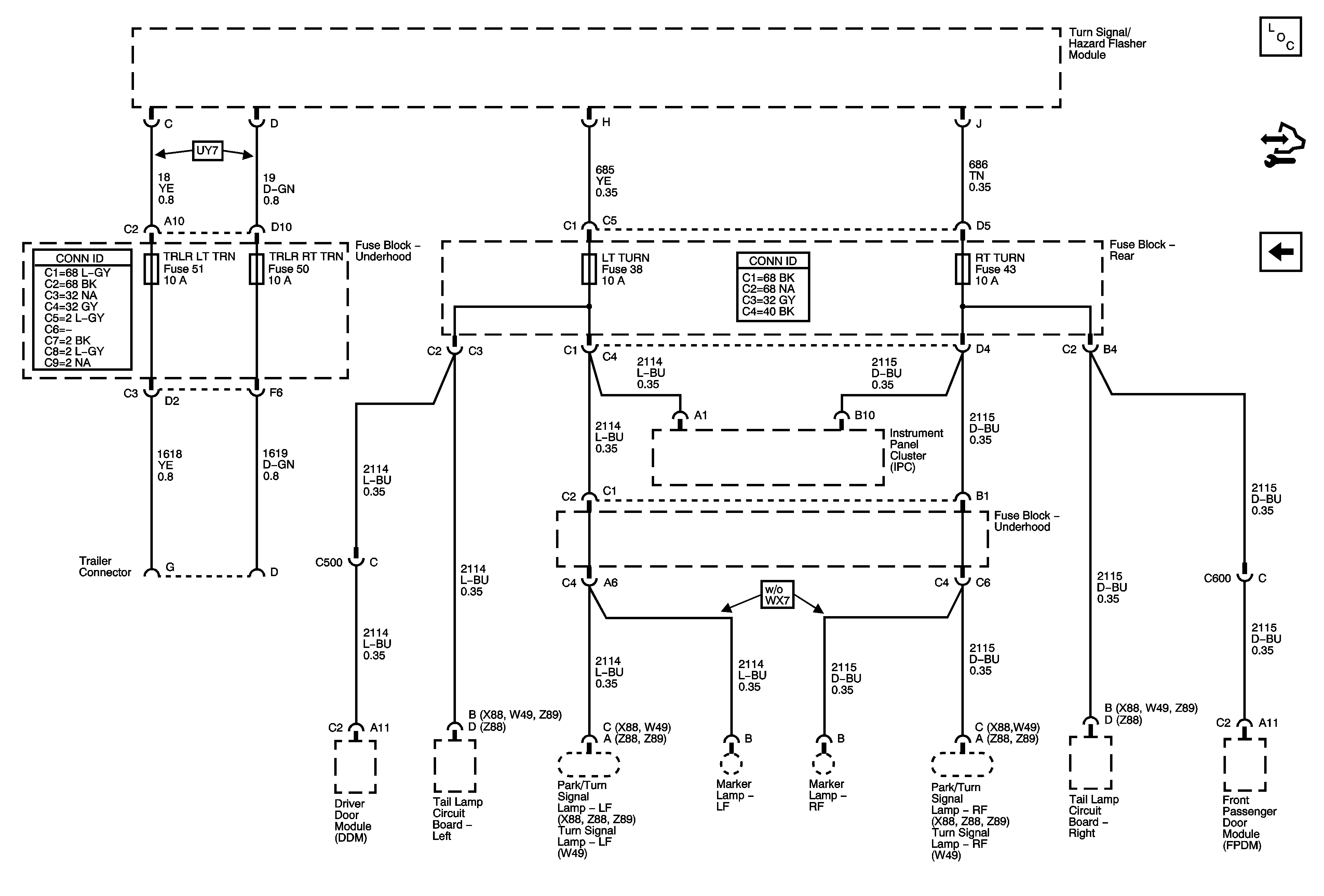
🢒 LT TURN, RT TURN, TRLR LT TRN, and TRLR RT TRN Fuses
LT TURN, RT TURN, TRLR LT TRN, and TRLR RT TRN Fuses
LT TURN, RT TURN, TRLR LT TRN, and TRLR RT TRN Fuses
Master Electrical Component List
Control Module References
ENG 1, ETC, INJA, INJB, O2 SNSR A, O2 SNSR B Fuses - 5.3L/6.0L