GM Service Manual Online
For 1990-2009 cars only
Makes
🢒
Oldsmobile
🢒
1998
🢒
Eighty Eight
🢒
Body and Accessories
🢒
Entertainment
🢒 Power Antenna Schematics
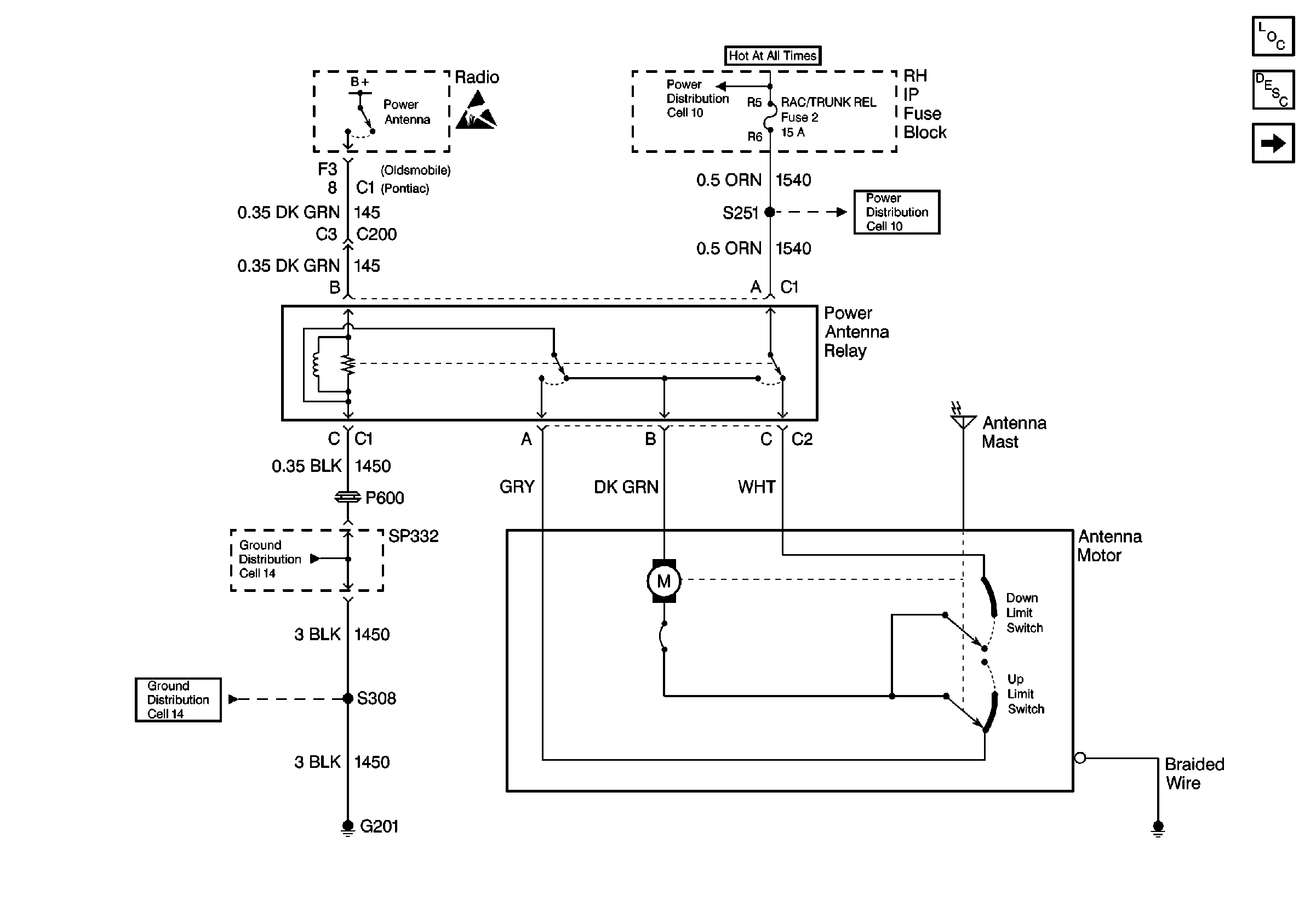
Figure
1:
Cell 151: Power Antenna
Entertainment Components
Power Antenna System Operation
Cell 151: Rear Window Antenna
Power Distribution Schematics
Power Distribution Schematics
Handling ESD Sensitive Parts Notice
Ground Distribution Schematics
Ground Distribution Schematics
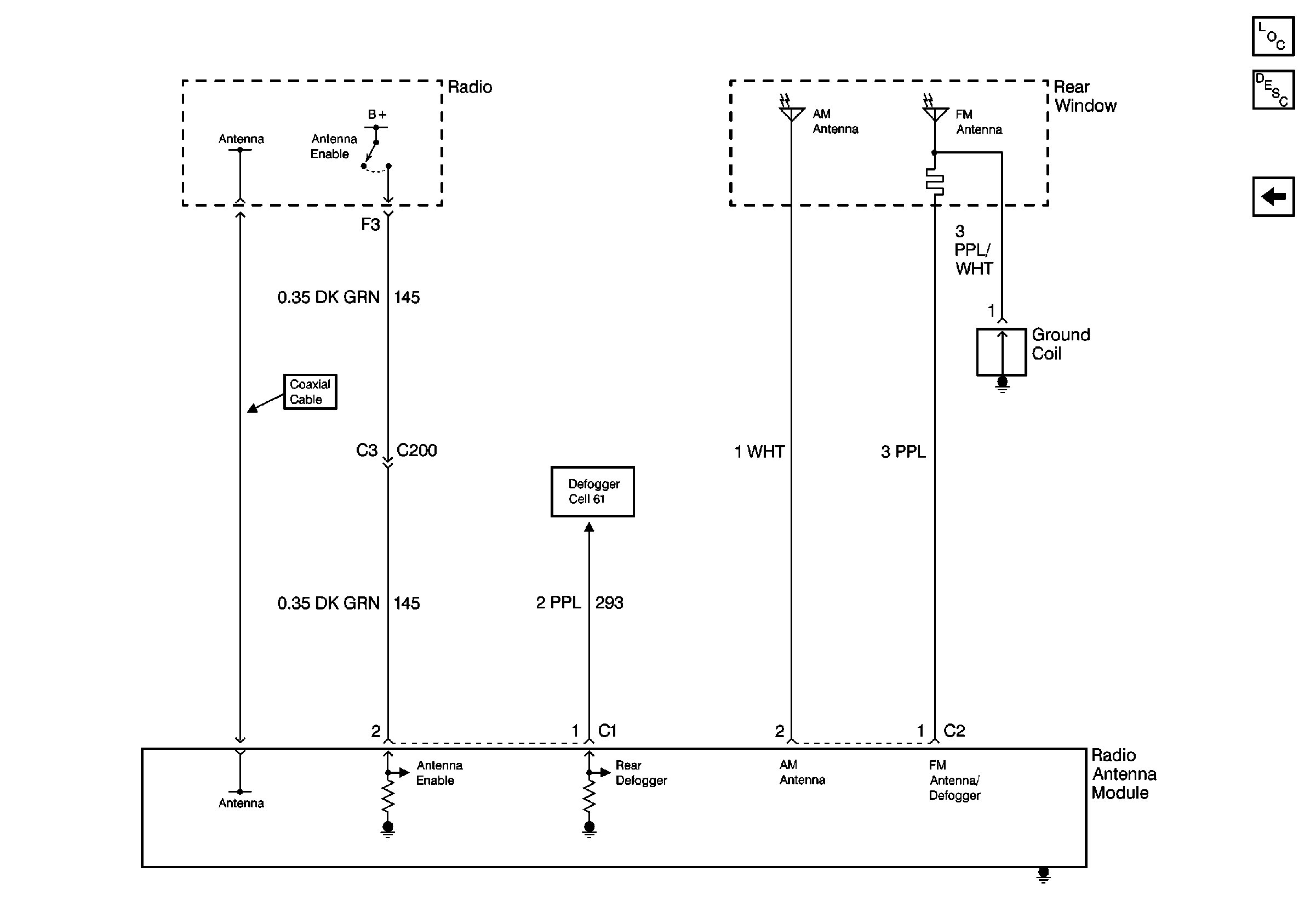
Figure
2:
Cell 151: Rear Window Antenna
Entertainment Components
Power Antenna System Operation
Cell 151: Power Antenna
Defogger Schematics