GM Service Manual Online
For 1990-2009 cars only
Makes
🢒
Pontiac
🢒
2004
🢒
Aztek - FWD
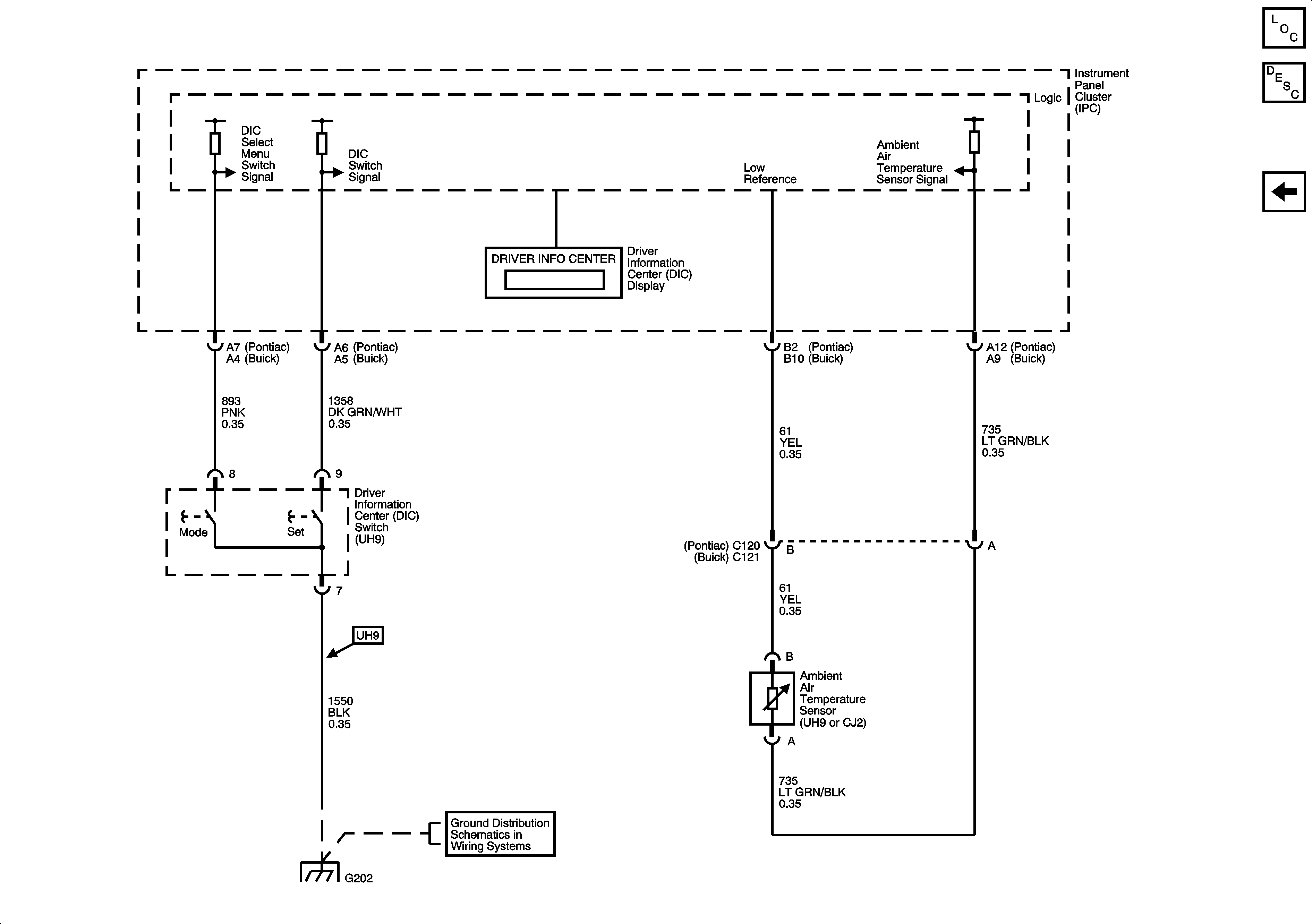
🢒 Driver Information Center (DIC)
Driver Information Center (DIC)
Driver Information Center (DIC)
Master Electrical Component List
Gages
Ground G202 - Buick
Ground G202 - Buick