GM Service Manual Online
For 1990-2009 cars only
Makes
🢒
Pontiac
🢒
2005
🢒
Aztek - FWD
🢒 Engine Data Sensors - Oxygen Sensors
Engine Data Sensors - Oxygen Sensors
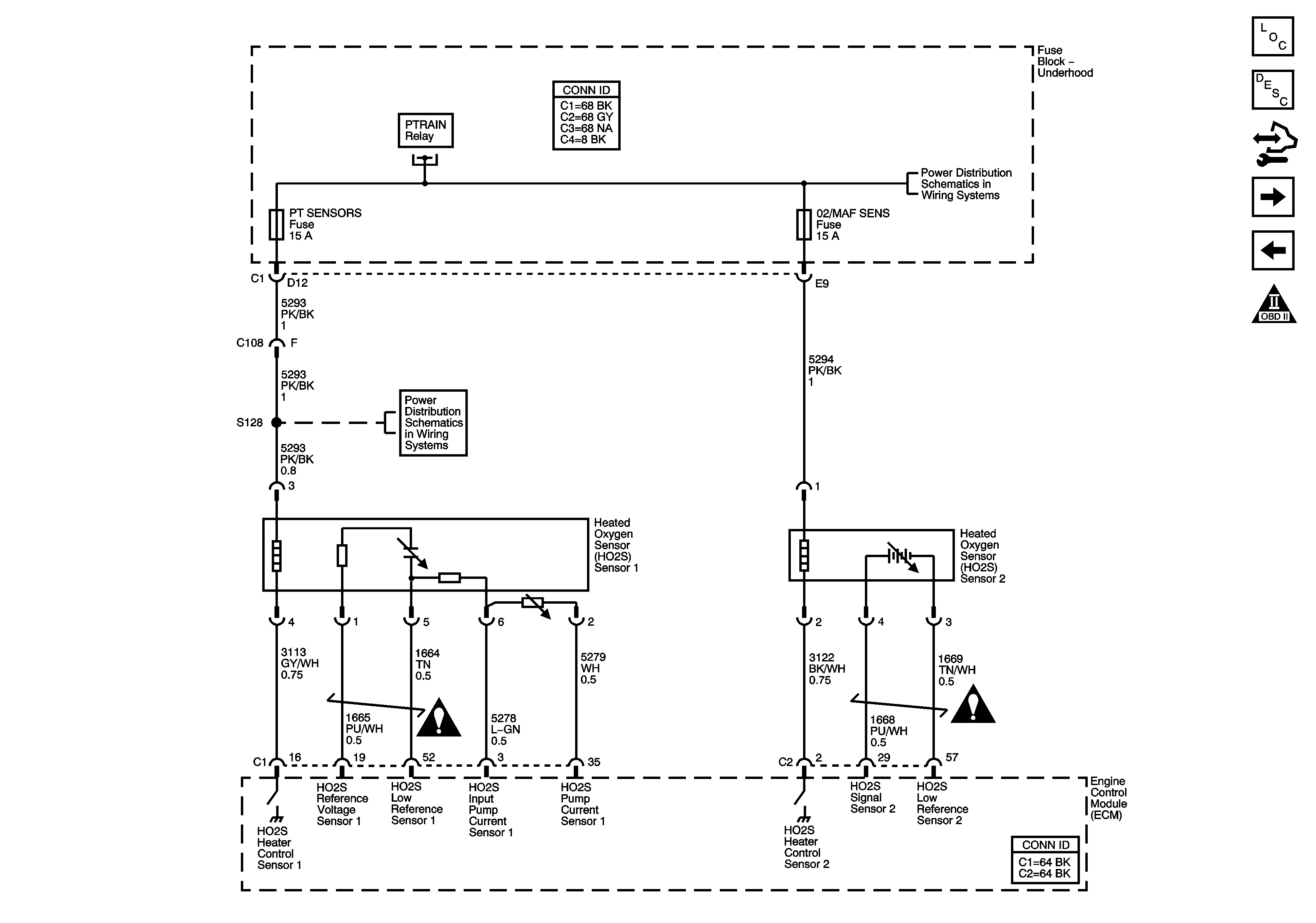
Engine Data Sensors - Heated Oxygen Sensors (HO2S)
Master Electrical Component List
Engine Control Module Description
Control Module References
Engine Data Sensors - Throttle Actuator Control (TAC) System
Engine Data Sensors - BARO, ECT and MAF/IAT Sensors
OBD II Symbol Description Notice
PTRAIN Relay (2 of 2), BTSI, PT RLY, and PT SENSORS Fuses - 3.6L
Engine Controls Schematic Icons
Engine Controls Schematic Icons