GM Service Manual Online
For 1990-2009 cars only
Makes
🢒
Pontiac
🢒
2000
🢒
Bonneville
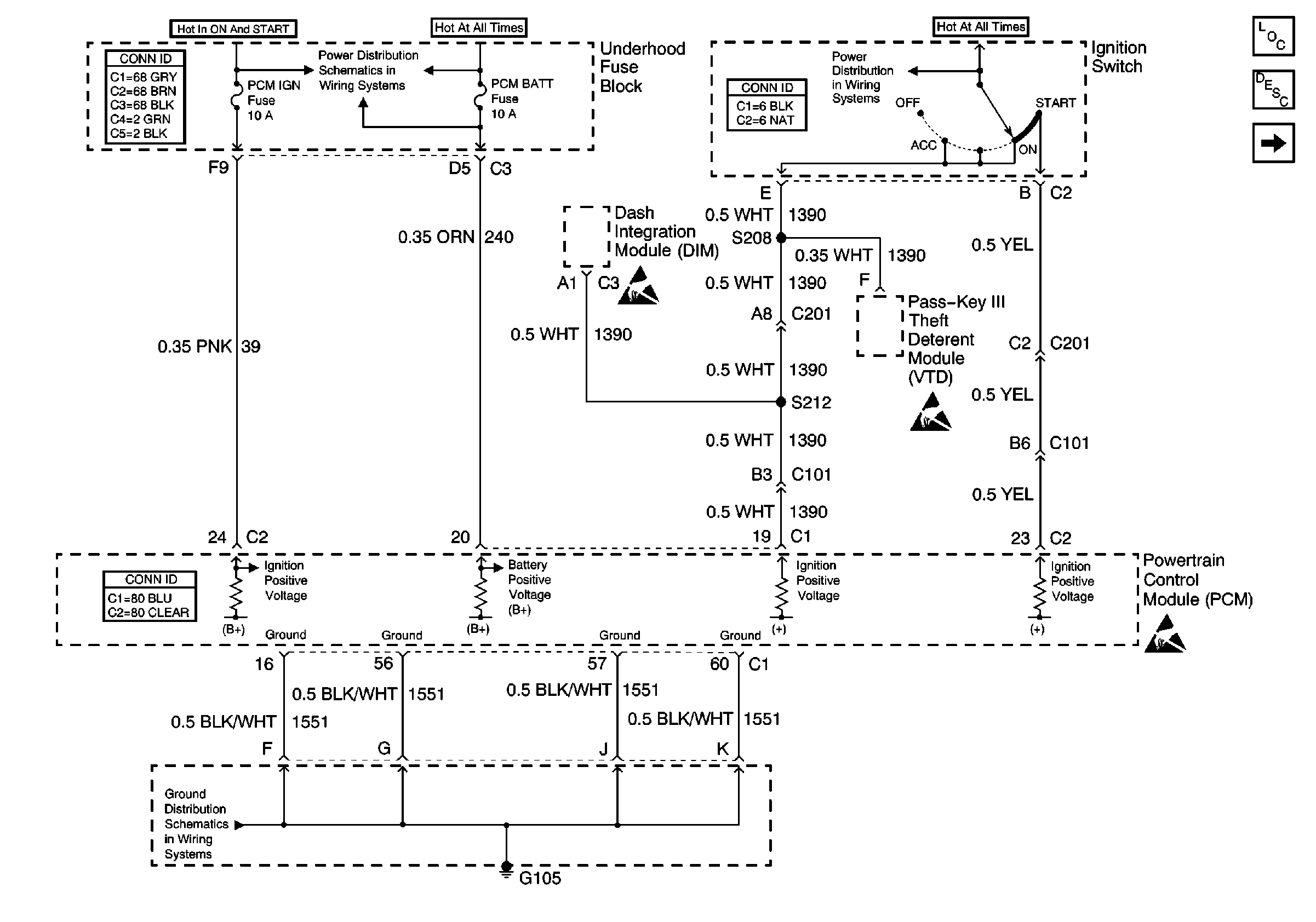
🢒 IGN Switch and PCM Feeds
IGN Switch and PCM Feeds
IGN Switch and PCM Feeds
Engine Controls Components
Powertrain Control Module Description
MIL and Data Link Connector
Handling ESD Sensitive Parts Notice
Handling ESD Sensitive Parts Notice
Handling ESD Sensitive Parts Notice
Battery Positive Voltage Circuits from the Battery
Ignition Switch
G104 and G105