GM Service Manual Online
For 1990-2009 cars only
Makes
🢒
Pontiac
🢒
2000
🢒
Firebird
🢒 Cell 141: Ultima(AQ9)
Cell 141: Ultima(AQ9)
Cell 141: Ultima(AQ9)
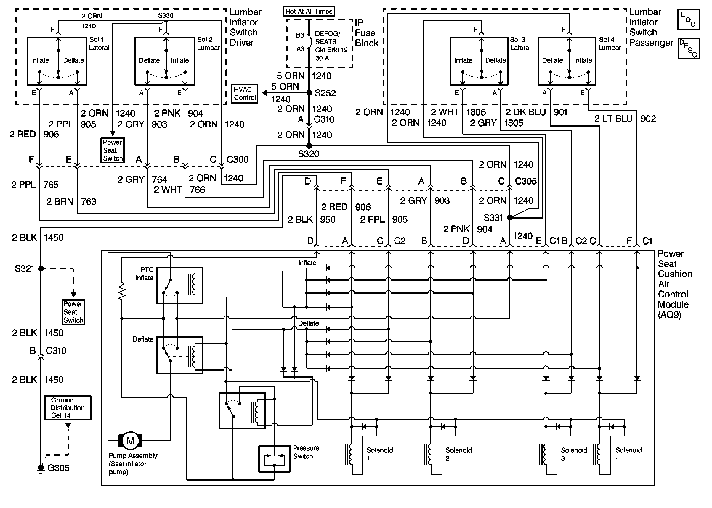
Power Seat Systems Components
Power Lumbar Circuit Description
G305, G310, G320
Cell 61