GM Service Manual Online
For 1990-2009 cars only
Makes
🢒
Pontiac
🢒
2007
🢒
G5
🢒
Body Systems
🢒
Vehicle Access
🢒 Door Lock/Indicator Schematics
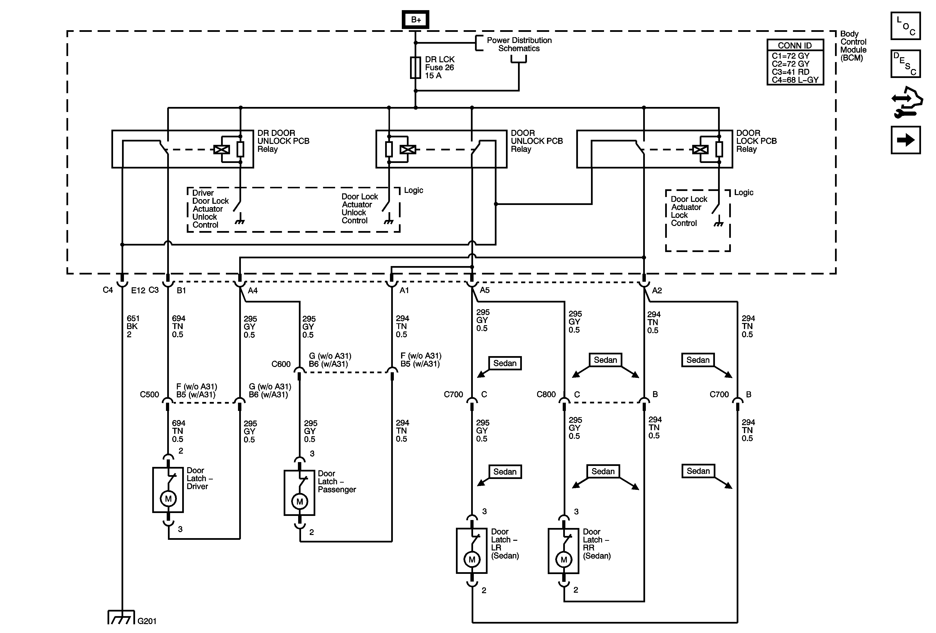
Figure
1:
Door Latches
Master Electrical Component List
Power Door Locks Description and Operation
Control Module References
Door Switches
BCM Fuses - DR LCK, ECM/TCM, INT LIGHT, PWR WNDW, RDO, SDM, S ROOF
G201 (2 of 2)
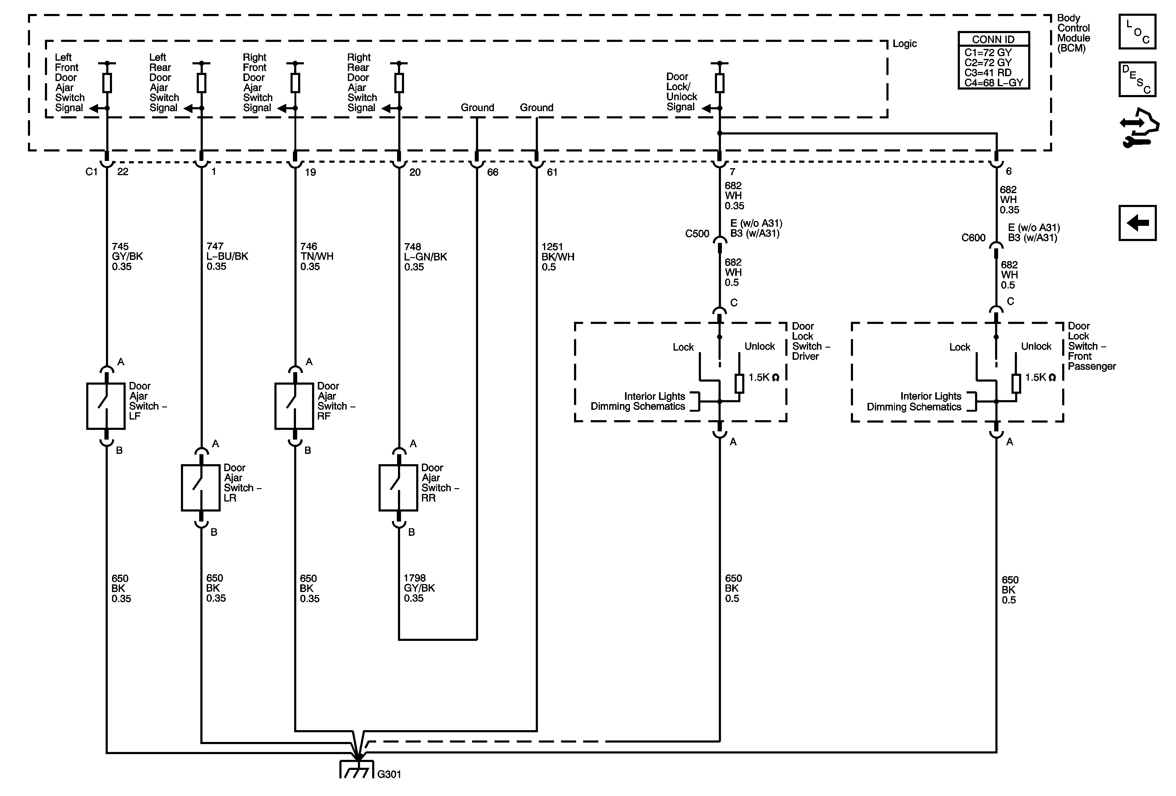
Figure
2:
Door Switches
Master Electrical Component List
Power Door Locks Description and Operation
Control Module References
Door Latches
Door and Seat Lighting
Door and Seat Lighting
G301 (2 of 2)