GM Service Manual Online
For 1990-2009 cars only
Makes
🢒
Pontiac
🢒
2005
🢒
GTO
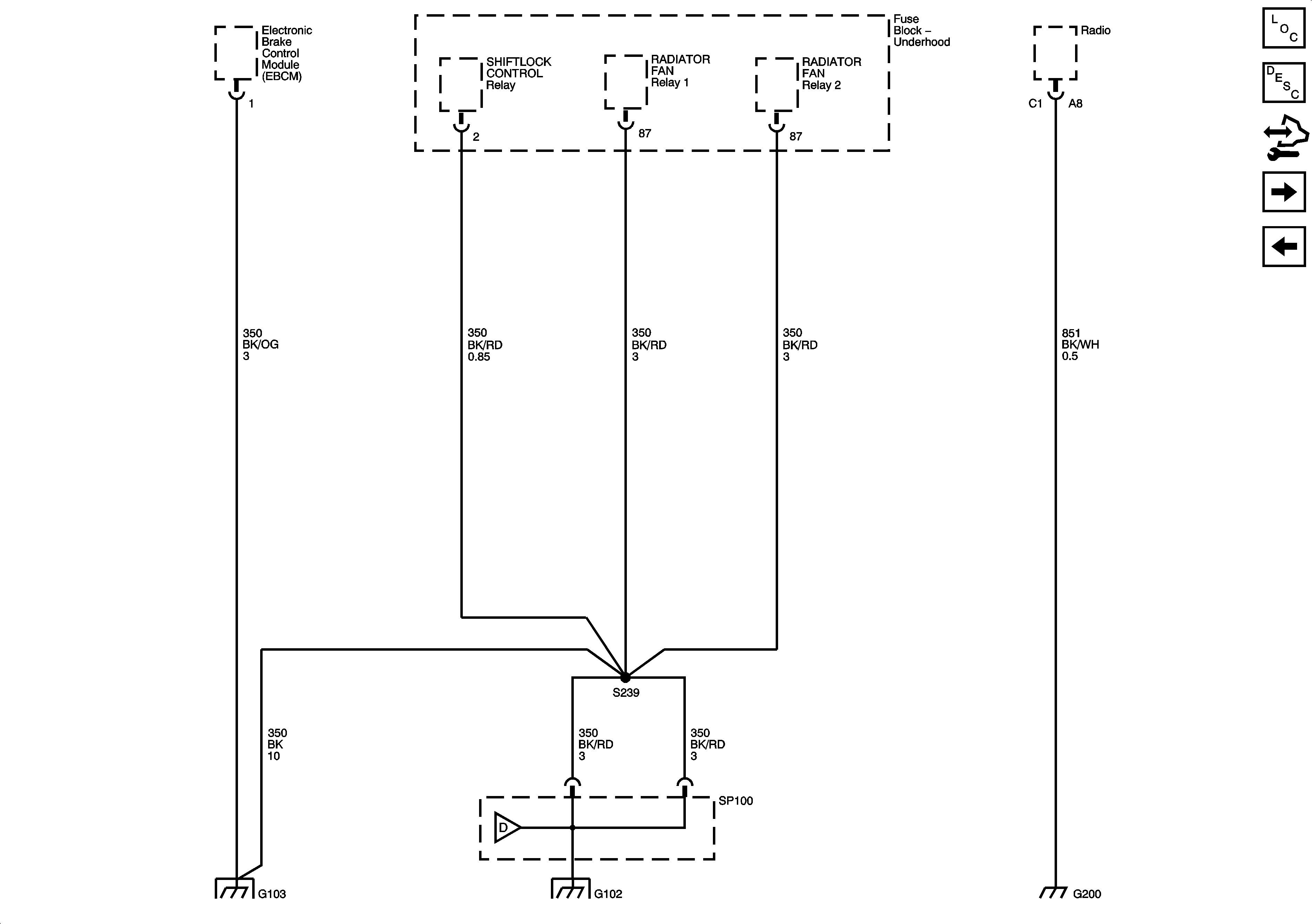
🢒 SP100 and G102 - 5 of 5, G103 and G200
SP100 and G102 - 5 of 5, G103 and G200
SP100 and G102 - 5 of 5, G103 and G200
Master Electrical Component List
Control Module References
G104 and G105
SP100 and G102 4 of 5