GM Service Manual Online
For 1990-2009 cars only
Makes
🢒
Pontiac
🢒
2004
🢒
Grand Prix
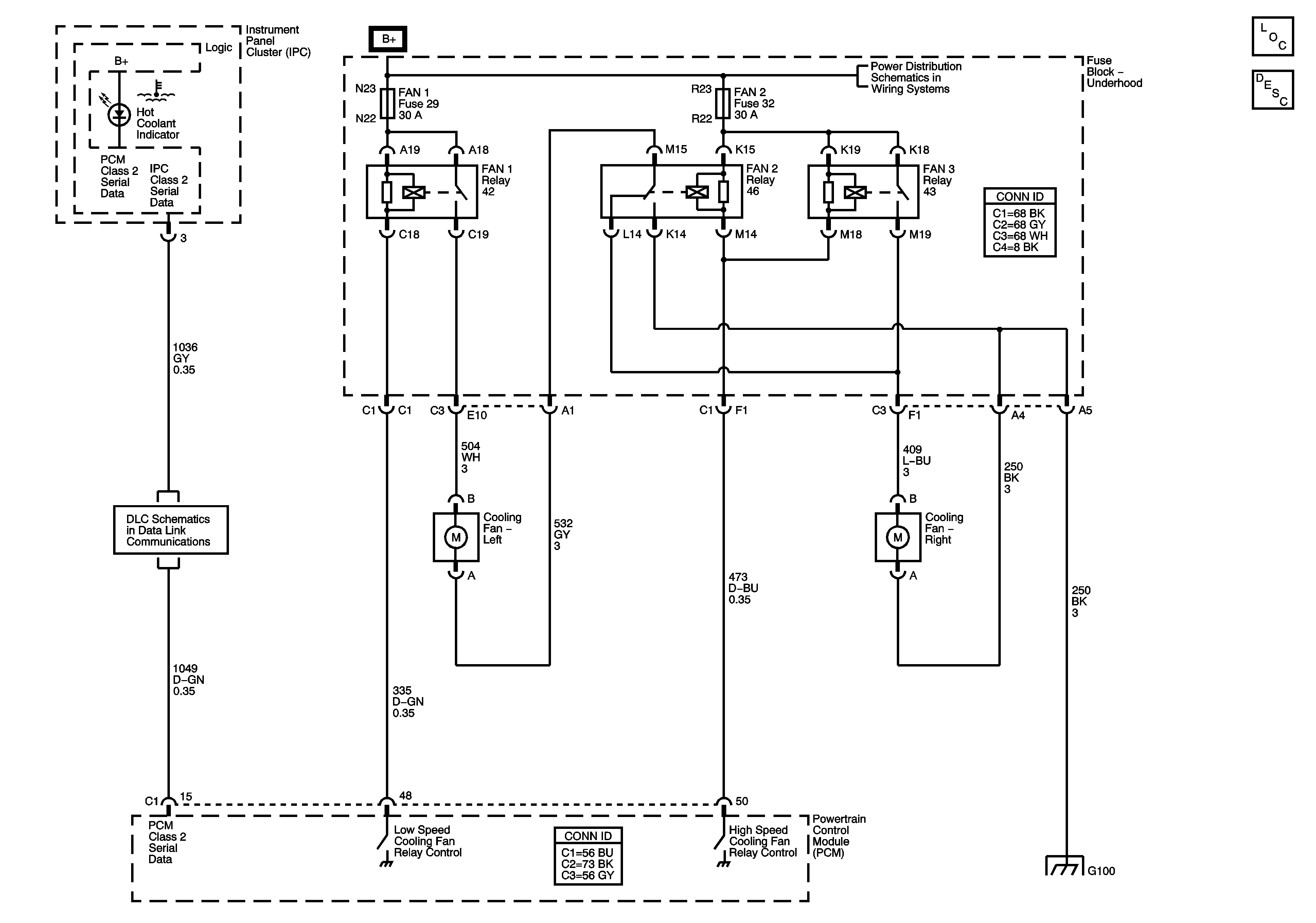
🢒 Engine Cooling Schematics
Engine Cooling Schematics
Master Electrical Component List
Cooling System Description and Operation
Fuse Block - Underhood Bussing
Fuse Block - Underhood Bussing
Data Link Connector (DLC) Schematics
G100