GM Service Manual Online
For 1990-2009 cars only
Makes
🢒
Pontiac
🢒
2005
🢒
Grand Prix
🢒 Engine Cooling Schematics
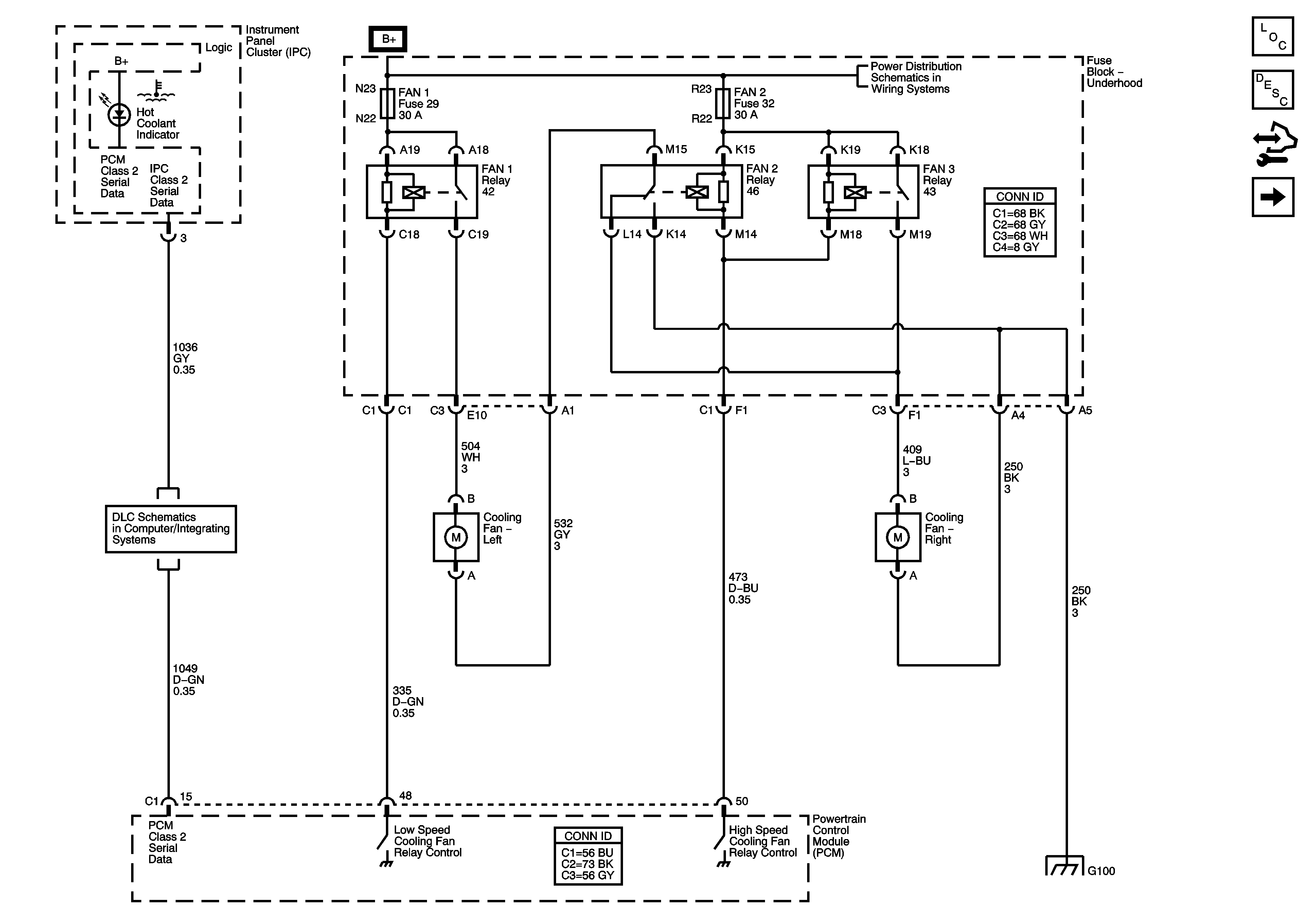
Engine Cooling Schematics
L26, L32
Master Electrical Component List
Cooling System Description and Operation
Control Module References
LS4
Fuse Block Underhood Bussing
Fuse Block Underhood Bussing
Data Link Communication
G100