GM Service Manual Online
For 1990-2009 cars only
Makes
🢒
Pontiac
🢒
2006
🢒
Solstice
🢒
Brakes
🢒
Antilock Brake System
🢒 Antilock Brake System Schematics
Figure
1:
EBCM Power, Wheel and Speed Sensors, and Brake Pedal Sensor
Master Electrical Component List
ABS Description and Operation
Control Module References
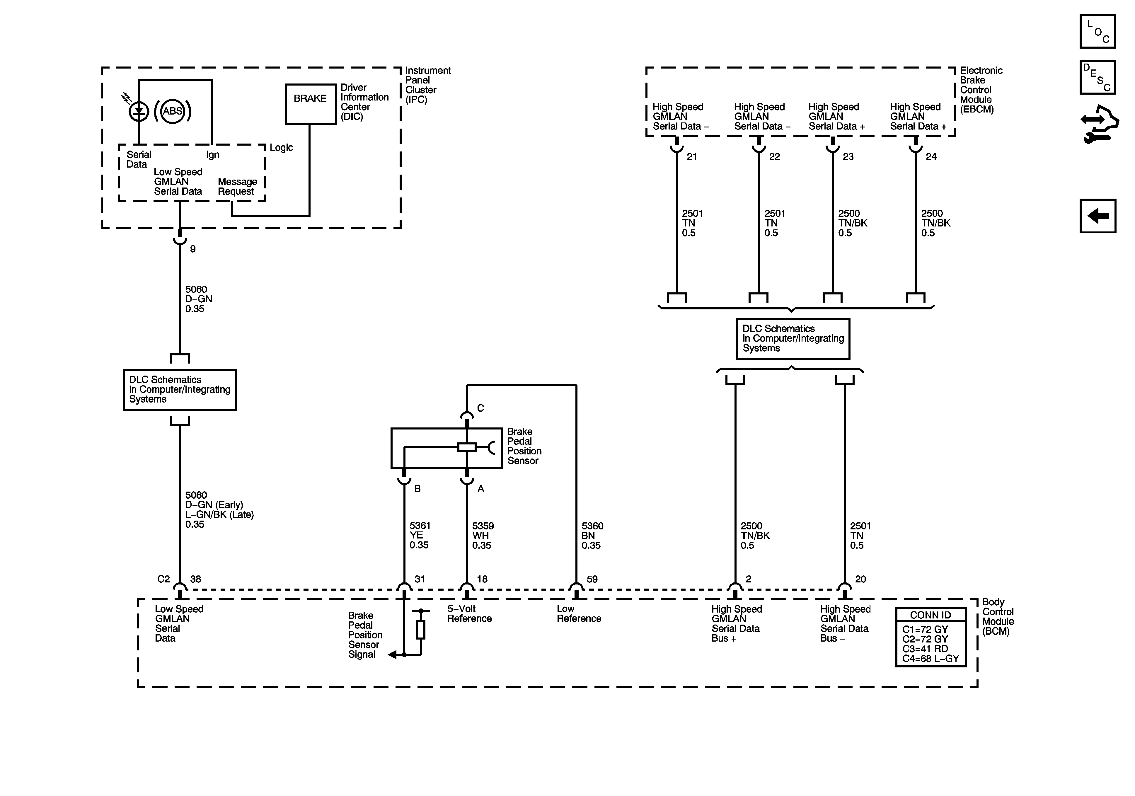
Brake Pedal Position Sensor, Indicators and Serial Data
B+ Bus Bar - 1 of 2
B+ Bus Bar - 2 of 2
G103, G204, G105, G104, and G106
Figure
2:
Brake Pressure Modulator Valves and ABS Telltale Indicator
Master Electrical Component List
ABS Description and Operation
Control Module References
EBCM Power, Ground, Wheel Speed Sensors, and BPMV