GM Service Manual Online
For 1990-2009 cars only
Makes
🢒
Pontiac
🢒
2007
🢒
Solstice
🢒 Manual Transmission Schematics
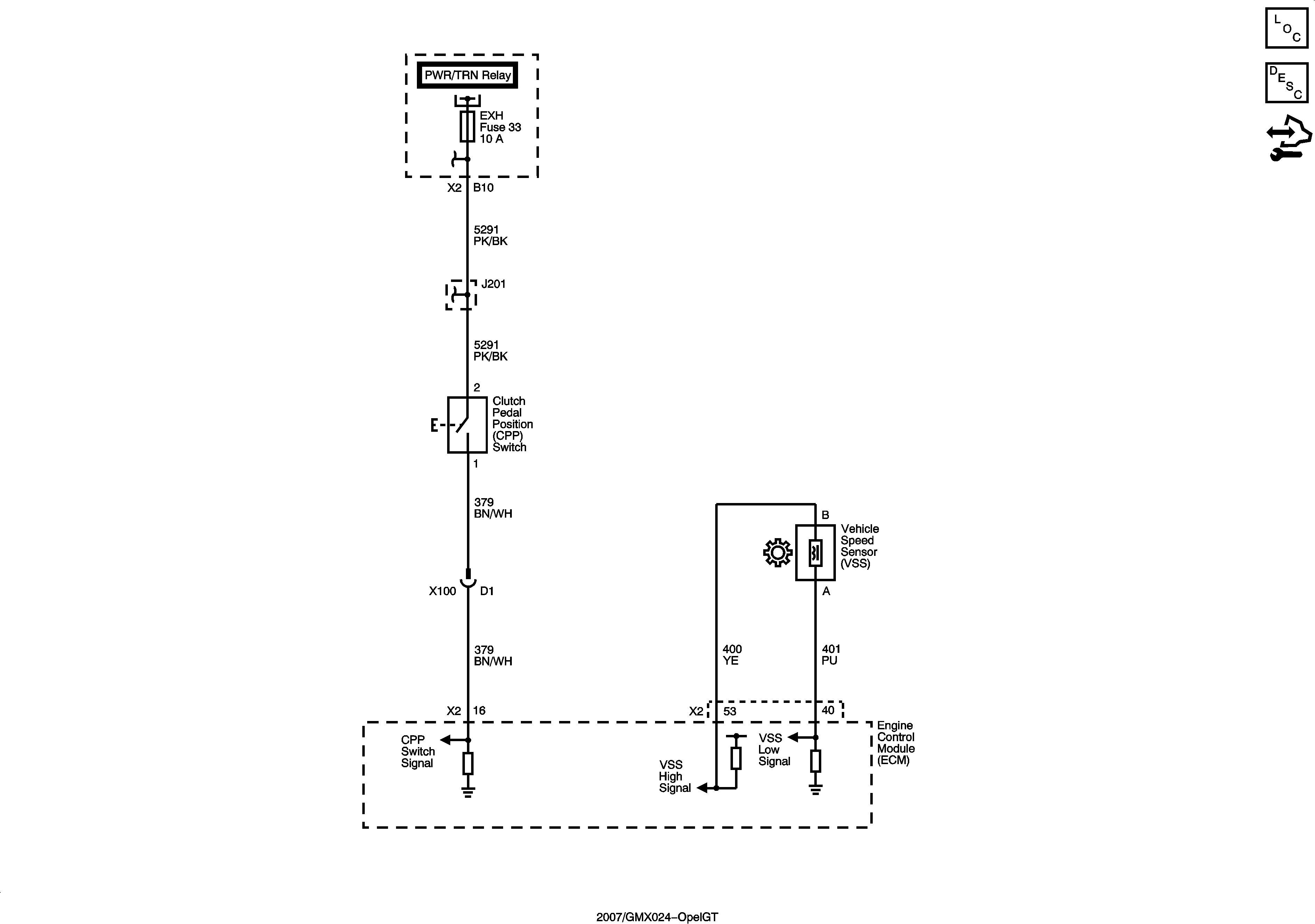
Manual Transmission Schematics
Master Electrical Component List
Transmission System Description and Operation
Control Module References
EMISSIONS, ECM, and LIGHTER Fuses