GM Service Manual Online
For 1990-2009 cars only
Makes
🢒
Pontiac
🢒
2003
🢒
Sunfire
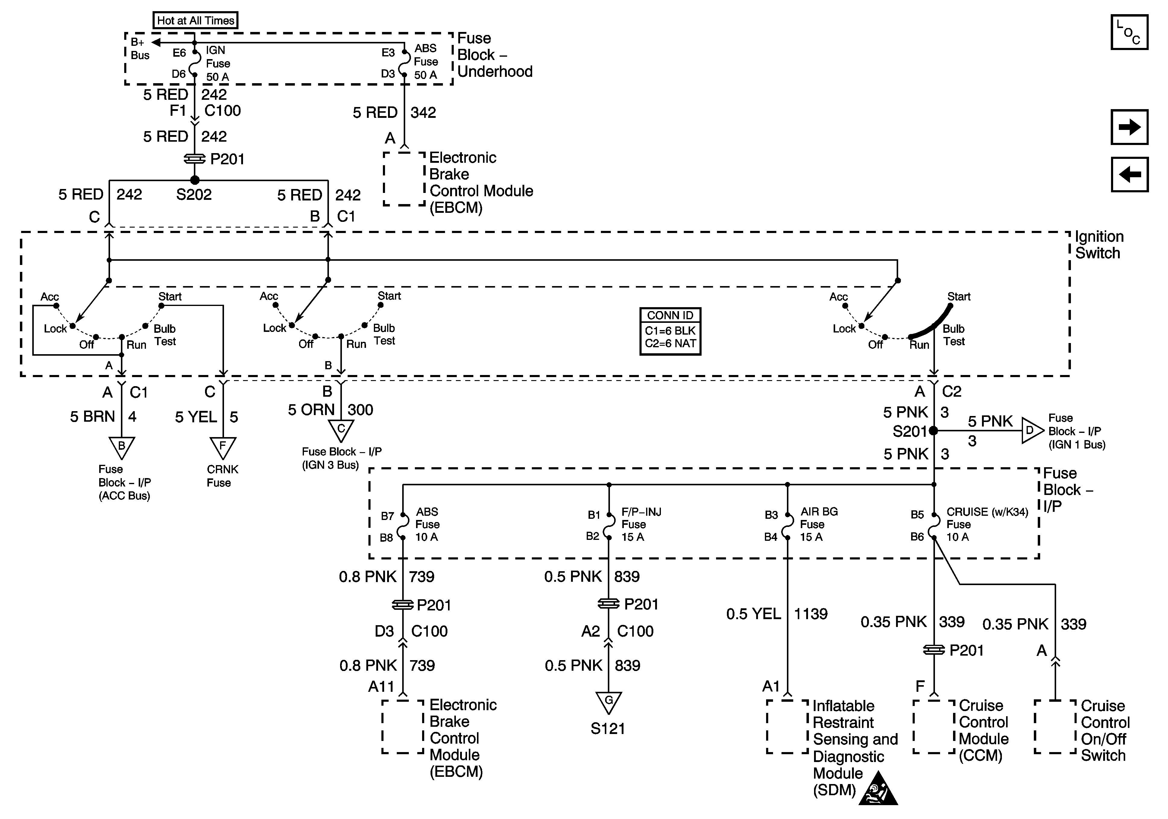
🢒 Fuse Block-Underhood IGN and ABS Fuses, Fuse Block-I/P ABS, F/P-INJ, AIR BG, and CRUISE (w/K34) Fuses
Fuse Block-Underhood IGN and ABS Fuses, Fuse Block-I/P ABS, F/P-INJ, AIR BG, and CRUISE (w/K34) Fuses
FUSE BLOCK - UNDERHOOD IGN, ABS, FUSE BLOCK - I/P ABS, F/P-INJ, AIR BG, CRUISE FUSES
Master Electrical Component List
Fuse Block-I/P F/P-INJ Fuse
Fuse Block-Underhood BATT2 Fuse and Fuse Block-I/P RR DEFOG, PWR ACC, APO, and STOP/HZD Fuses
Fuse Block-I/P BCM, WIPER, HVAC, 02 HTR, and PWR WDO Fuses
Fuse Block-Underhood CRNK Fuse
Fuse Block-I/P BCM, WIPER, HVAC, 02 HTR, and PWR WDO Fuses
Fuse Block-I/P TURN-B/U, IGN MDL, PCM, and BCM/CLU Fuses
Fuse Block-I/P F/P-INJ Fuse
SIR Caution for Zoning