GM Service Manual Online
For 1990-2009 cars only
Makes
🢒
Pontiac
🢒
2007
🢒
Wave
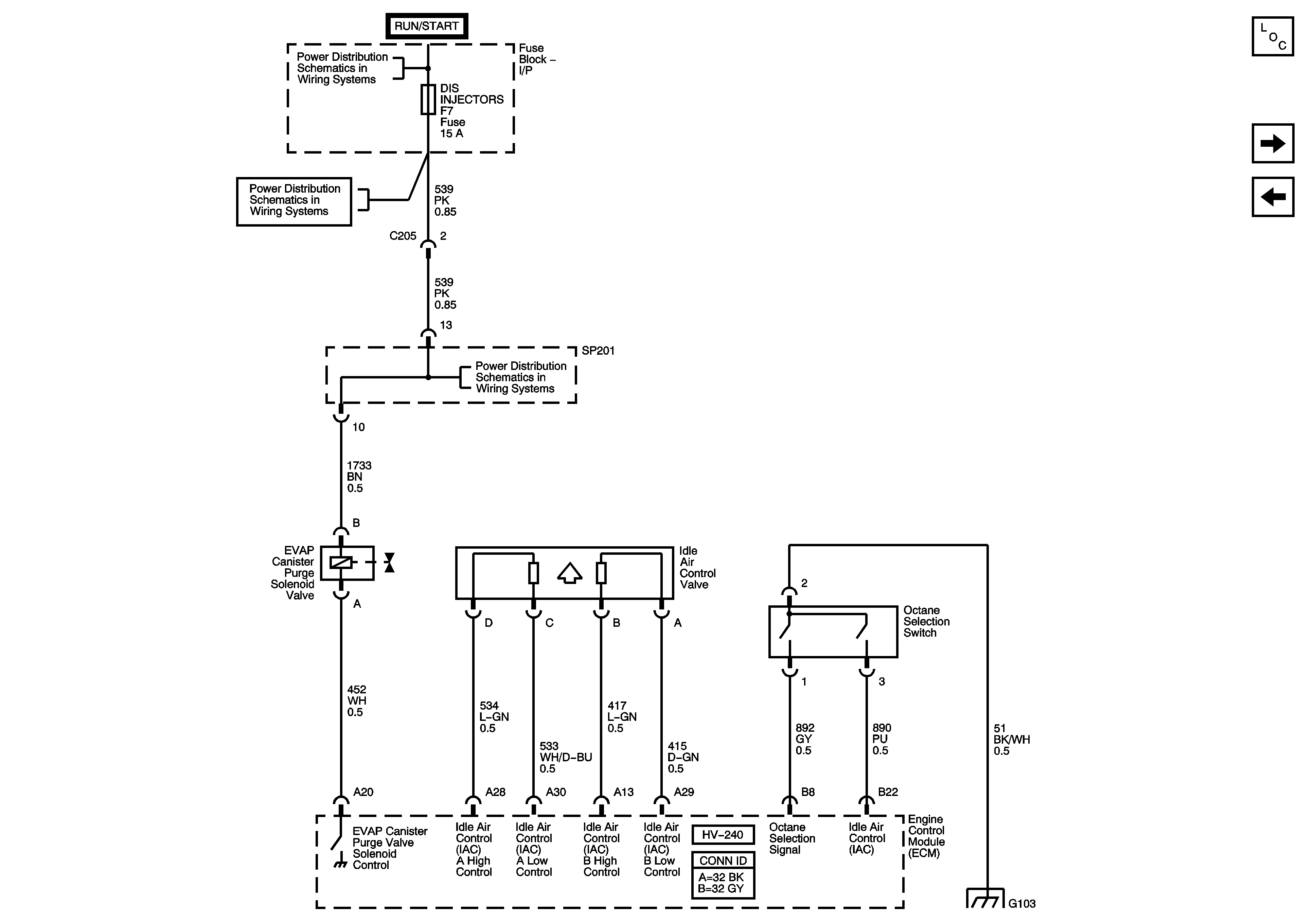
🢒 EVAP, IAC Valve and Octane Selector 1.5L
EVAP, IAC Valve and Octane Selector 1.5L
EVAP, IAC Valve and Octane Selector
Master Electrical Component List (Hatchback)
Subsystem Reference 1.5L
Fuel System 1.5L
Battery Feed
Battery Feed
Battery Feed
Ground Distrbution G103 - 1.2L