GM Service Manual Online
For 1990-2009 cars only
Makes
🢒
Pontiac
🢒
2007
🢒
Wave
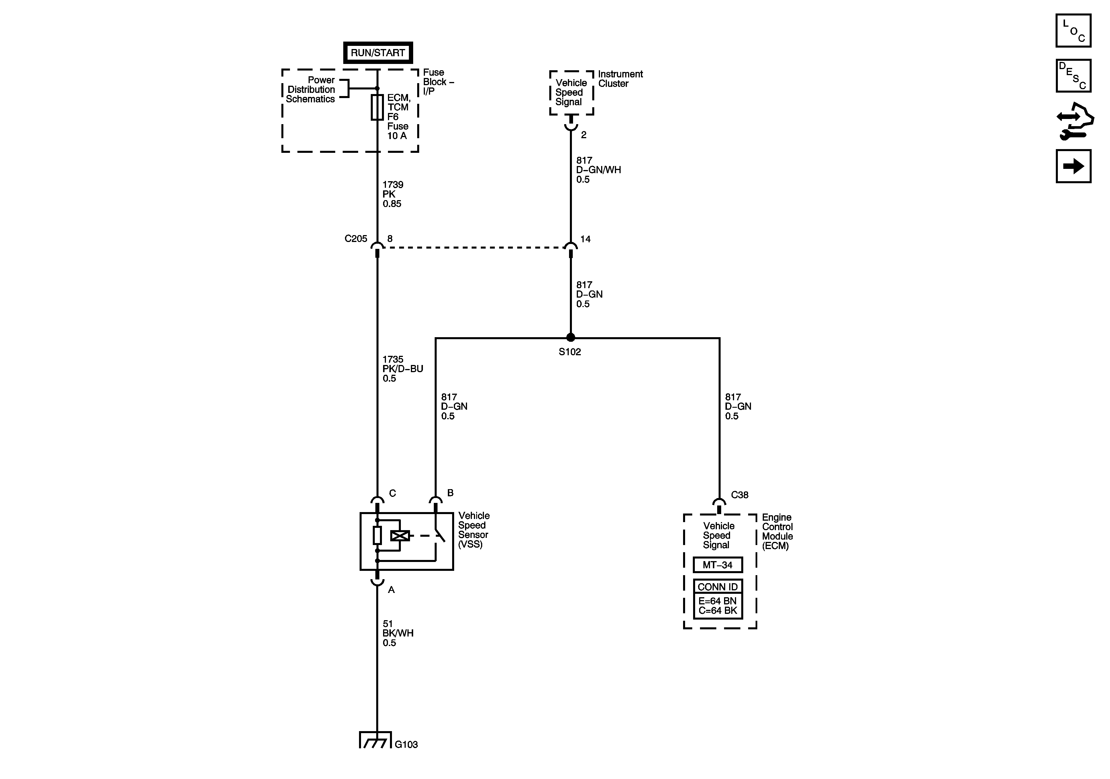
🢒 VSS 1.6L
VSS 1.6L
VSS 1.6L
Master Electrical Component List Hatchback
Transmission System Description and Operation
Control Module References
VSS 1.4L, 1.5L
Power Distribution Ignition Switch and Fuses F6, 7 - 1 of 2, 17 and 18
Ground Distribution G103 - 1.6L