GM Service Manual Online
For 1990-2009 cars only
Makes
🢒
Saab
🢒
2007
🢒
9-7x
🢒 Lumbar Controls
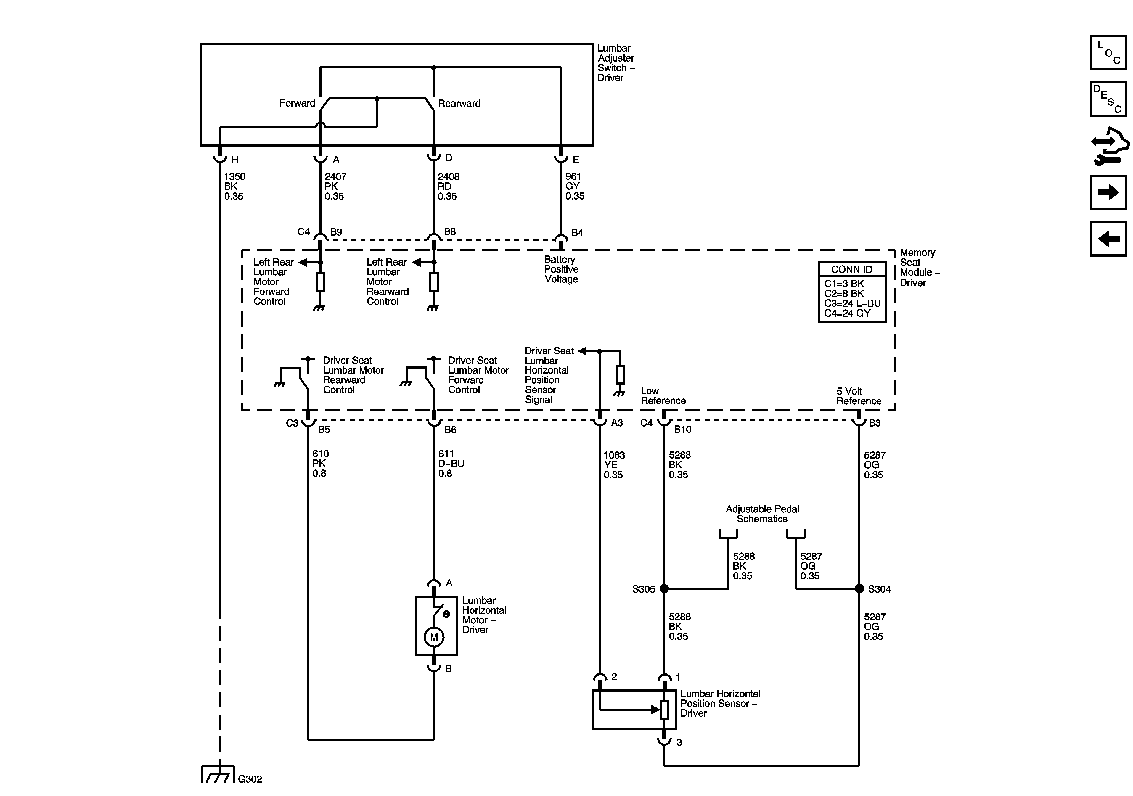
Lumbar Controls
Lumbar Controls
Master Electrical Component List
Lumbar Support Description and Operation
Control Module References
Memory Controls
Power Seat Controls - Motor and Position Sensors
Adjustable Pedal Schematics
G302 - 1 of 2, G303, and G304