GM Service Manual Online
For 1990-2009 cars only
Makes
🢒
Saturn
🢒
2004
🢒
ION
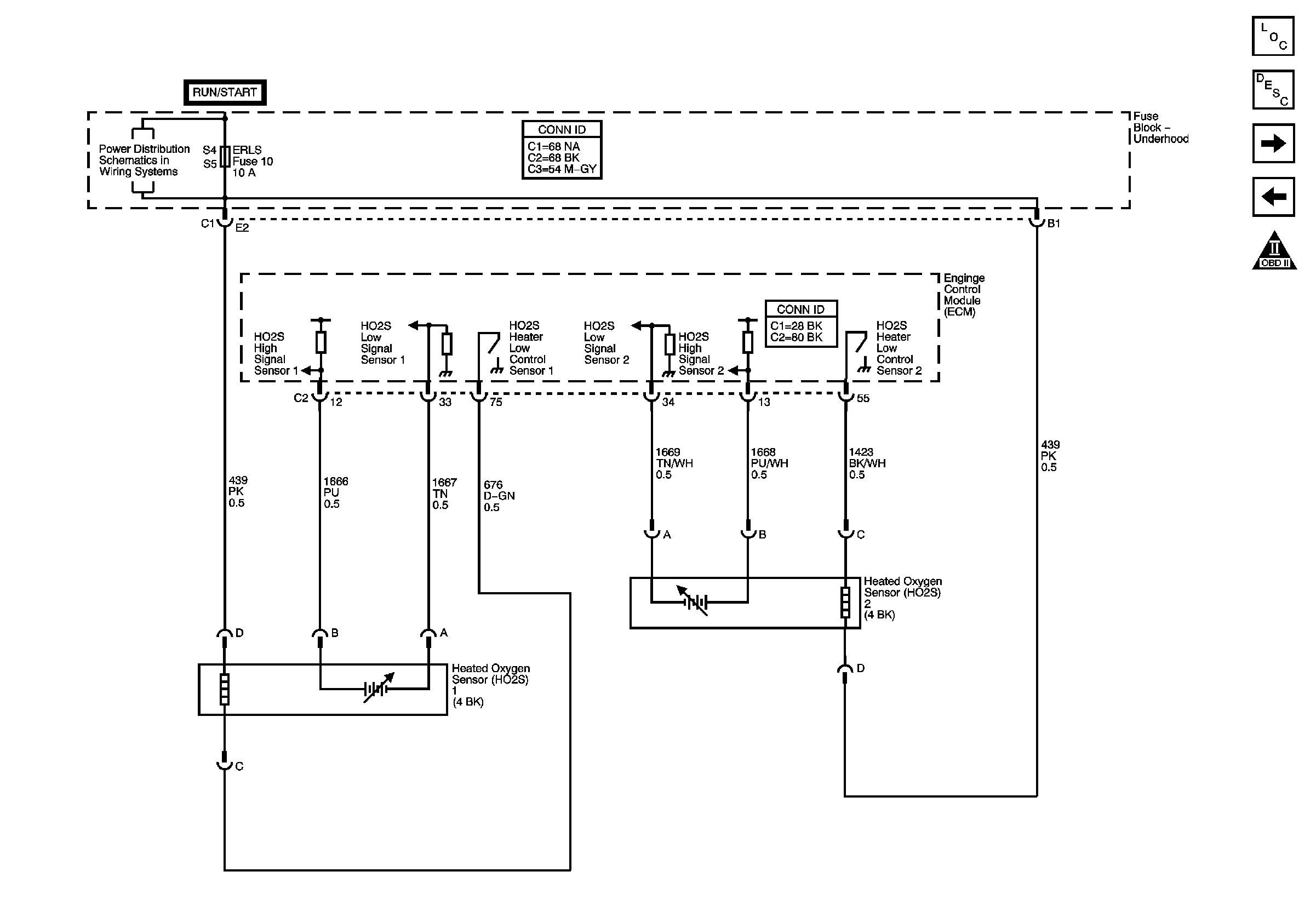
🢒 Engine Data Sensors-HO2S
Engine Data Sensors-HO2S
Engine Data Sensors-HO2S
Master Electrical Component List
Engine Control Module Description
Ignition Controls
Engine Data Sensors-Pressure and Temperature
Fuse Block-Underhood Fuses: ERLS, and INJECTORS, BCM Fuses: AIR BAG, CRUISE, and EPS
OBD II Symbol Description Notice