GM Service Manual Online
For 1990-2009 cars only
Makes
🢒
Saturn
🢒
2005
🢒
ION
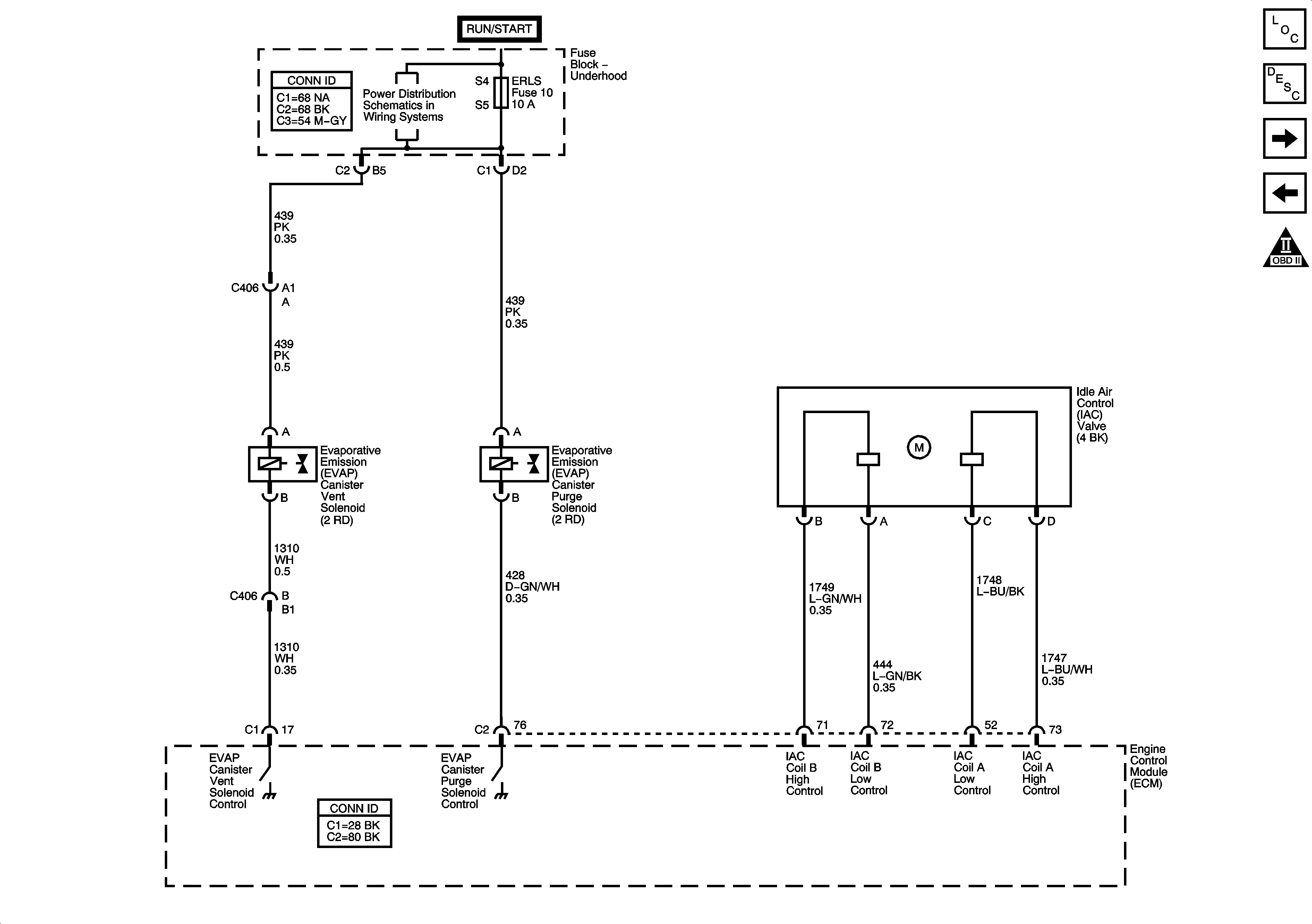
🢒 EVAP Controls and IAC
EVAP Controls and IAC
EVAP Controls and IAC
Master Electrical Component List
Engine Control Module Description
Controlled/Monitored Subsystem Reference
Fuel Delivery
OBD II Symbol Description Notice
Fuse Block - Underhood Fuses: ERLS and Injectors, BCM Fuses: Air Bag, EPS