GM Service Manual Online
For 1990-2009 cars only

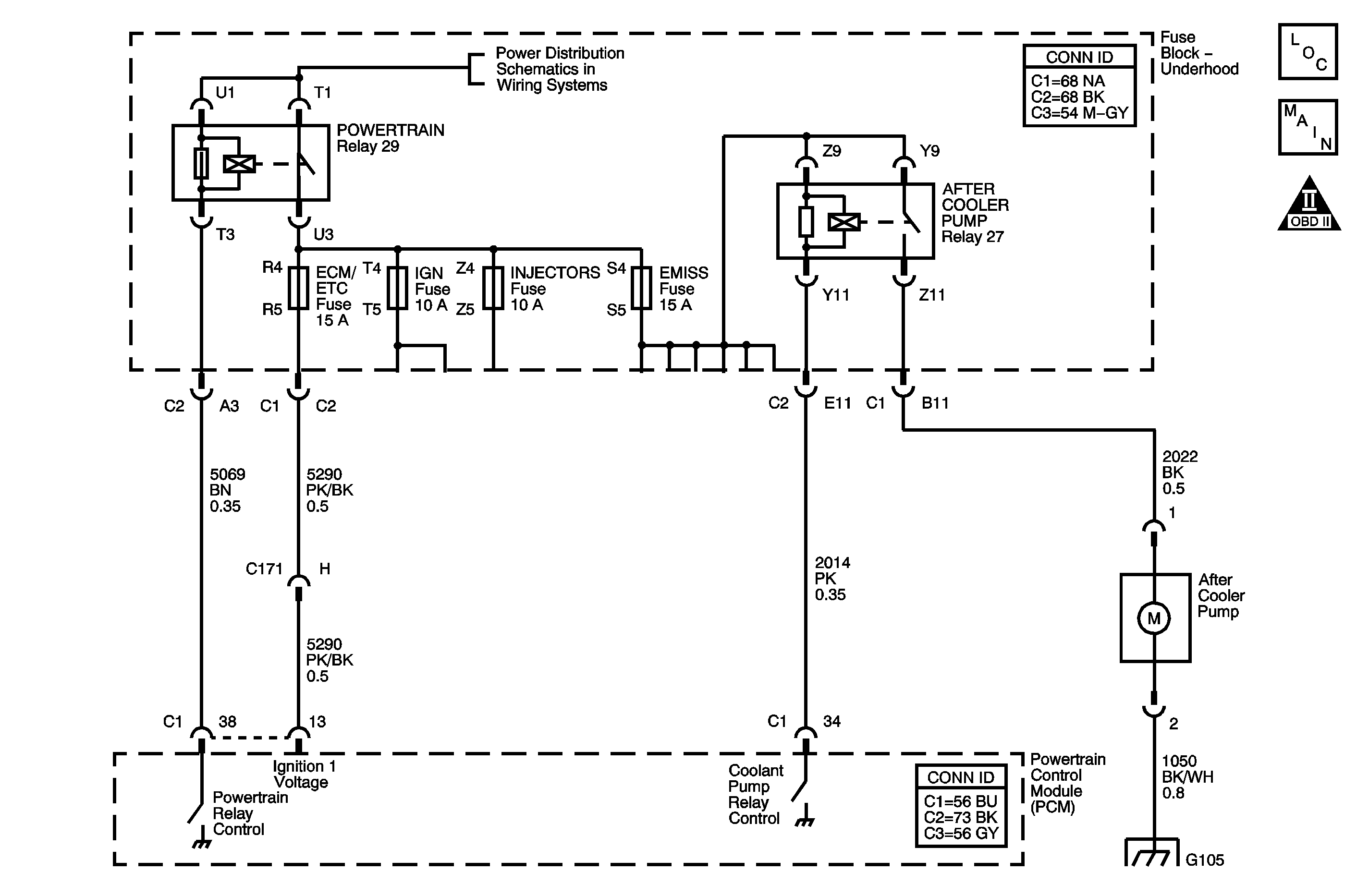
Object Number: 1510096  Size: MF

Circuit Description

The supercharger intercooler relay is a normally open relay. The relay armature is held in the open position by spring tension. The ignition 1 voltage is supplied directly to the relay coil and to the armature contact when the ignition is ON, or the engine is running. The powertrain control module (PCM) supplies the ground path to the relay coil control circuit via an internal integrated circuit called an output driver module (ODM). When the engine is running , the PCM commands the relay ON, and the relay coil creates an electromagnetic field. This electromagnetic field overcomes the spring tension and pulls the armature contact into the stationary contact of the relay load circuit. The closing of the relay contacts allow current to flow from the battery to the supercharger intercooler pump. When the ignition switch is turned to the OFF position, power is interrupted to the output driver module in the PCM and the relay electromagnetic field collapses. This allows the spring tension to separate the relay armature contact from the relay load circuit contact, which interrupts current flow to the supercharger intercooler pump.

If the PCM detects an improper voltage on the supercharger intercooler pump relay control circuit for more than 30 seconds, DTC P023A sets.

DTC Descriptor

This diagnostic procedure supports the following DTC:

DTC P023A Charge Air Cooler (CAC) Coolant Pump Relay Control Circuit

Conditions for Running the DTC

    • The ignition is ON, or the engine is running.
    • The Ignition 1 Voltage parameter is between 11-18 volts.
    • DTC P023A runs continuously when the above conditions are met.

Conditions for Setting the DTC

The PCM detects an improper voltage on the supercharger intercooler pump relay control circuit for more than 30 seconds.

Action Taken When the DTC Sets

    • The control module illuminates the malfunction indicator lamp (MIL) on the second consecutive ignition cycle that the diagnostic runs and fails.
    • The control module records the operating conditions at the time the diagnostic fails. The first time the diagnostic fails, the control module stores this information in the Failure Records. If the diagnostic reports a failure on the second consecutive ignition cycle, the control module records the operating conditions at the time of the failure. The control module writes the operating conditions to the Freeze Frame and updates the Failure Records.

Conditions for Clearing the MIL/DTC

    • The control module turns OFF the malfunction indicator lamp (MIL) after 3 consecutive ignition cycles that the diagnostic runs and does not fail.
    • A current DTC, Last Test Failed, clears when the diagnostic runs and passes.
    • A history DTC clears after 40 consecutive warm-up cycles, if no failures are reported by this or any other emission related diagnostic.
    • Clear the MIL and the DTC with a scan tool.

Step

Action

Yes

No

Schematic Reference: Power Distribution Schematics in Wiring Systems and Engine Controls Schematics

Connector End View Reference: Power and Grounding Connector End Views , Electrical Center Identification Views in Wiring Systems, and Powertrain Control Module Connector End Views

1

Did you perform the Diagnostic System Check - Vehicle?

Go to Step 2

Go to Diagnostic System Check - Vehicle in Vehicle DTC Information

2

  1. Observe the Freeze Frame/Failure Records for this DTC.
  2. Turn OFF the ignition for 90 seconds.
  3. Important: Some failure modes of this diagnostic only run at Ignition ON.

  4. Turn ON the ignition for 90 seconds.
  5. Start the engine.
  6. Operate the vehicle within the Conditions for Running the DTC. You may also operate the vehicle within the conditions that you observed from the Freeze Frame/Failure Records.

Did the DTC fail this ignition?

Go to Step 3

Go to Testing for Intermittent Conditions and Poor Connections in Wiring Systems

3

  1. Turn ON the ignition, with the engine OFF.
  2. Remove the underhood fuse block cover.
  3. Remove and inspect the EMISS fuse.

Is the fuse open?

Go to Step 12

Go to Step 4

4

Probe both terminals of the EMISS fuse bus bar in the underhood fuse block with a test lamp that is connected to a good ground.

Does the test lamp illuminate when touching one of the terminals?

Go to Step 5

Go to Powertrain Relay Diagnosis

5

  1. Install the EMISS fuse.
  2. Remove the supercharger (SC) intercooler pump relay. Refer to Relay Replacement in Wiring Systems.
  3. Test for an intermittent and for poor connections at the underhood fuse block. Refer to Testing for Intermittent Conditions and Poor Connections and Connector Repairs in Wiring Systems.

Did you find and correct the condition?

Go to Step 16

Go to Step 6

6

Probe the SC intercooler pump relay coil ignition 1 voltage supply circuit terminal in the fuse block with a test lamp that is connected to a good ground.

Does the test lamp illuminate?

Go to Step 7

Go to Step 13

7

Important: With the ignition ON, and the engine OFF, the SC intercooler pump relay coil control circuit is not commanded ON.

Probe the SC intercooler pump relay coil control circuit terminal in the fuse block with a test lamp connected to battery positive voltage.

Does the test lamp illuminate?

Go to Step 9

Go to Step 8

8

  1. Probe the SC intercooler pump relay coil control circuit terminal in the fuse block with a test lamp connected to battery positive voltage.
  2. Select the Intercooler Pump in the Engine Output Controls on the scan tool.
  3. Command the relay ON and OFF.

Does the test lamp blink ON and OFF with each command?

Go to Step 14

Go to Step 10

9

Test the SC intercooler pump relay coil control circuit for a short to ground. Refer to Circuit Testing and Wiring Repairs in Wiring Systems.

Did you find and correct the condition?

Go to Step 16

Go to Step 11

10

Test the SC intercooler pump relay coil control circuit for a short to voltage or an open. Refer to Circuit Testing and Wiring Repairs in Wiring Systems.

Did you find and correct the condition?

Go to Step 16

Go to Step 11

11

Test for shorted terminals and for poor connections at the powertrain control module (PCM). Refer to Testing for Intermittent Conditions and Poor Connections and Connector Repairs in Wiring Systems.

Did you find and correct the condition?

Go to Step 16

Go to Step 15

12

Important:: The ignition 1 voltage circuit is spliced to other components of the vehicle.

Test the spliced ignition 1 voltage circuits and components for a short to ground. Refer to Testing for Short to Ground , Circuit Testing , and Wiring Repairs in Wiring Systems.

Did you find and correct the condition?

Go to Step 16

--

13

Repair the high resistance or an open in the SC intercooler pump relay coil ignition 1 voltage supply circuit.

Did you complete the repair?

Go to Step 16

--

14

Replace the SC intercooler pump relay. Refer to Relay Replacement in Wiring Systems.

Did you complete the replacement?

Go to Step 16

--

15

Replace the PCM. Refer to Control Module References in Computer/Integrating Systems for replacement, setup, and programming.

Did you complete the replacement?

Go to Step 16

--

16

  1. Clear the DTCs with a scan tool.
  2. Turn OFF the ignition for 90 seconds.
  3. Start the engine.
  4. Operate the vehicle within the Conditions for Running the DTC. You may also operate the vehicle within the conditions that you observed from the Freeze Frame/Failure Records.

Did the DTC fail this ignition?

Go to Step 2

Go to Step 17

17

Observe the Capture Info with a scan tool.

Are there any DTCs that have not been diagnosed?

Go to Diagnostic Trouble Code (DTC) List - Vehicle in Vehicle DTC Information

System OK