GM Service Manual Online
For 1990-2009 cars only
Makes
🢒
Saturn
🢒
2006
🢒
ION
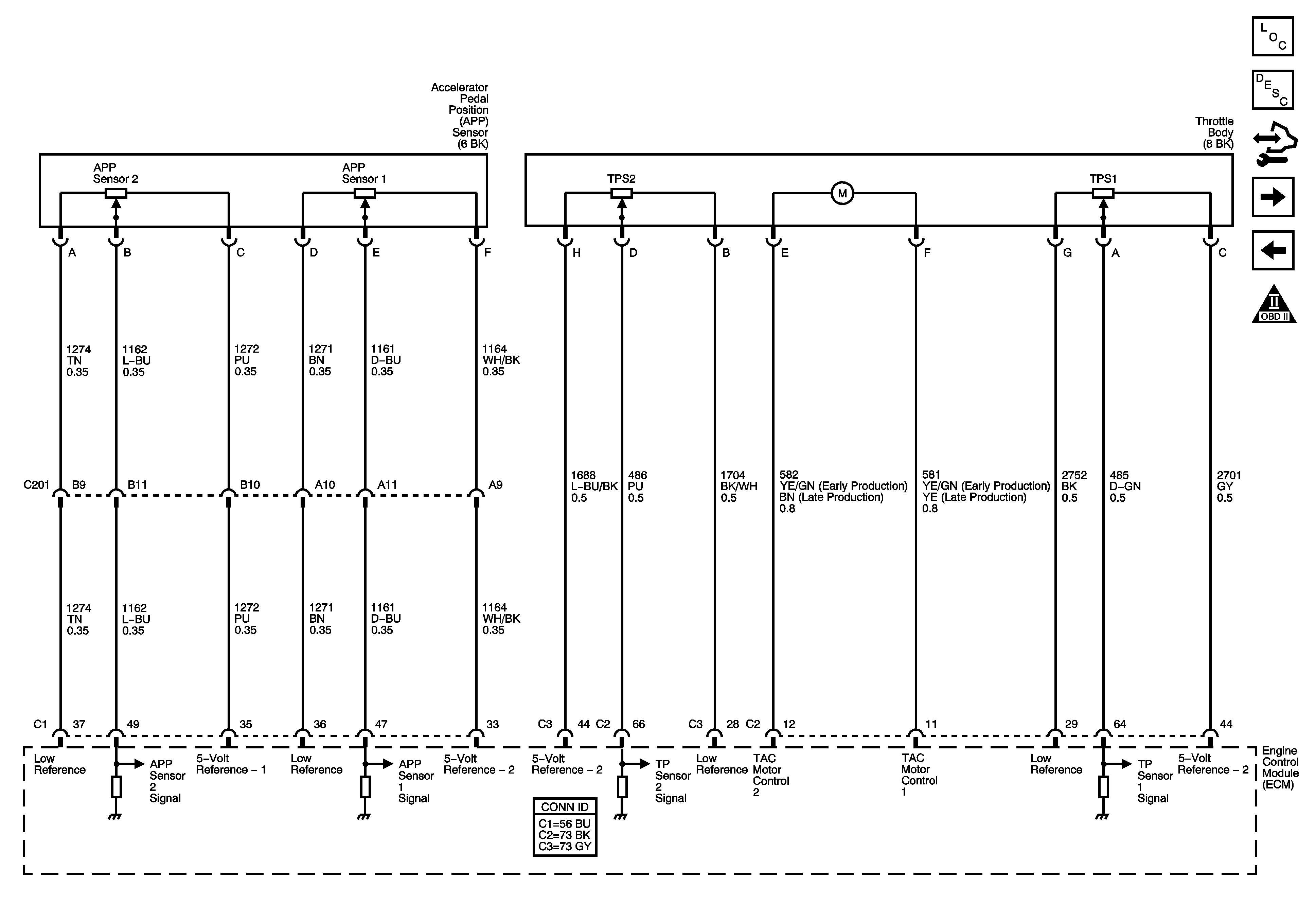
🢒 Engine Data Senosrs, APP and TAC
Engine Data Senosrs, APP and TAC
Engine Data Sensors- APP & TAC
Master Electrical Component List
Throttle Actuator Control (TAC) System Description
Control Module References
Ignition Controls - Ignition System
Engine Data Sensors, HO2
Engine Controls Schematic Icons