GM Service Manual Online
For 1990-2009 cars only
Makes
🢒
Saturn
🢒
2007
🢒
ION
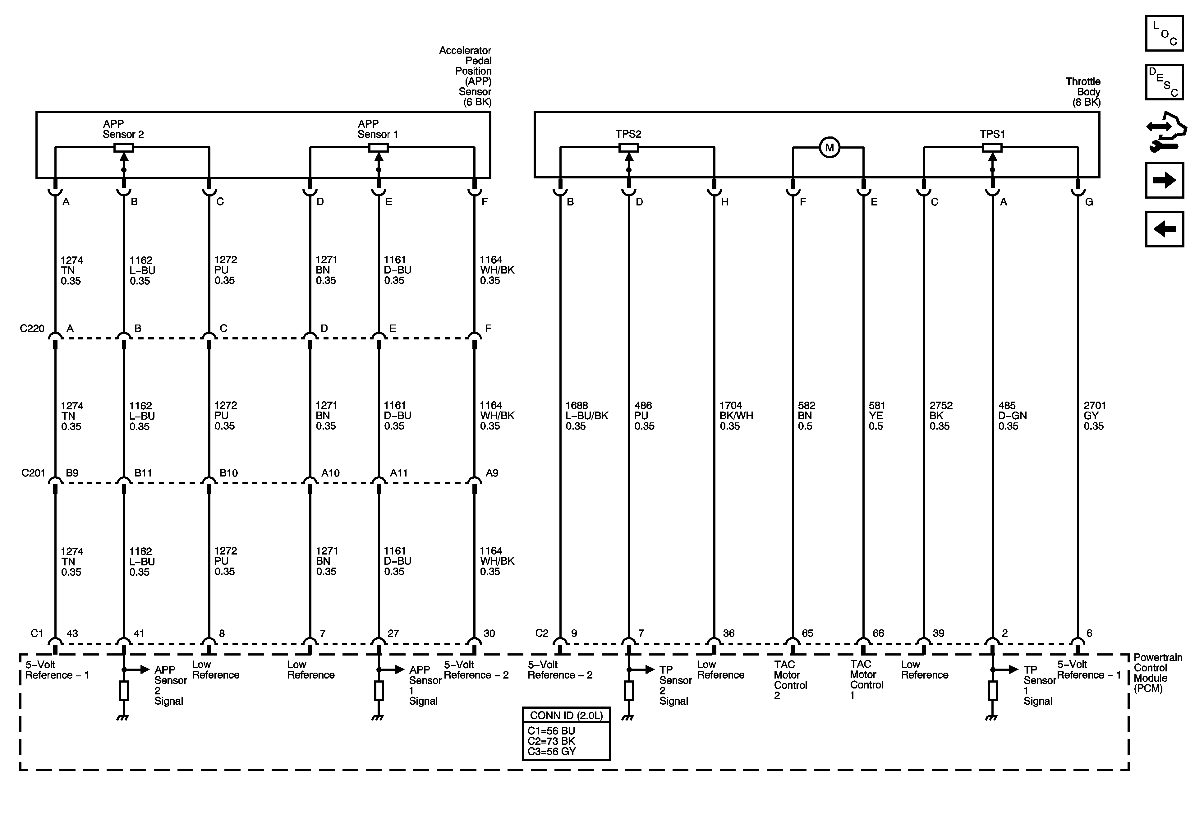
🢒 Engine Data Sensors - APP and TAC
Engine Data Sensors - APP and TAC
Engine Data Sensors - APP and TAC
Master Electrical Component List
Throttle Actuator Control (TAC) System Description
Control Module References
Ignition Controls
Engine Data Sensors - HO2S