GM Service Manual Online
For 1990-2009 cars only
Makes
🢒
Saturn
🢒
2007
🢒
RELAY Ext.
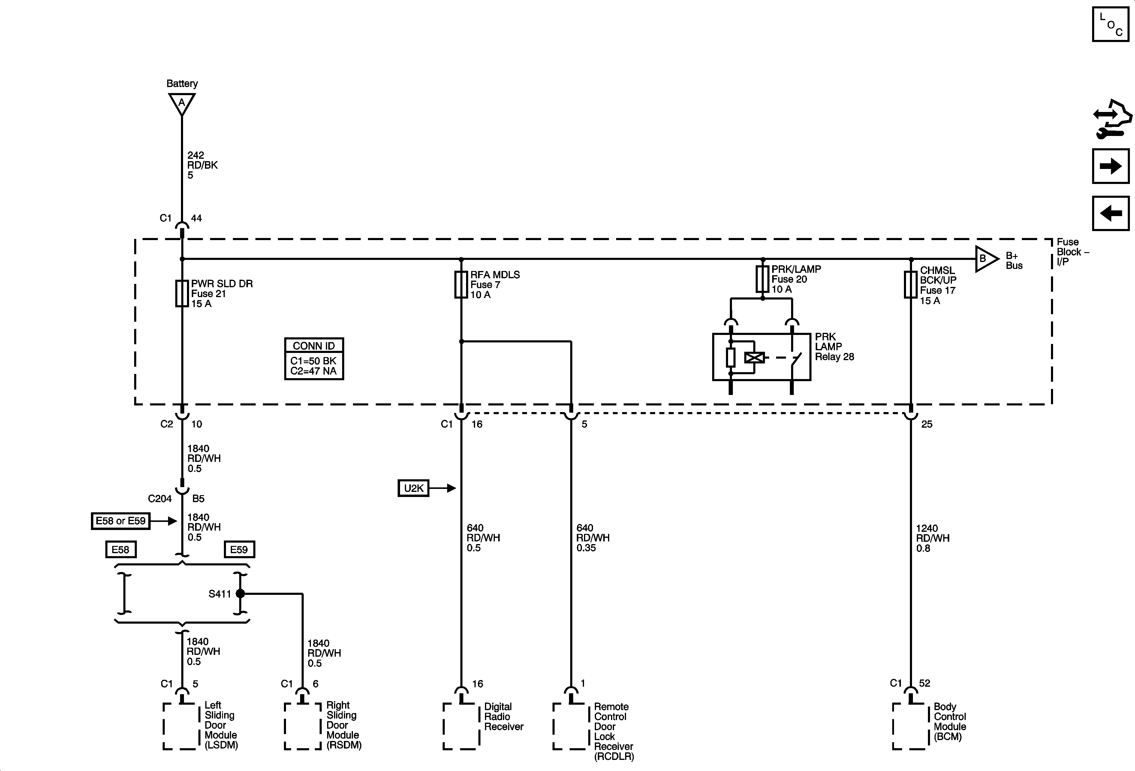
🢒 CHMSL BCK/UP, PRK LAMP, PWR SLD DR, and RFA MDLS Fuses
CHMSL BCK/UP, PRK LAMP, PWR SLD DR, and RFA MDLS Fuses
CHMSL BCK/UP, PRK/LAMP, PWR SLD DR, and RFA MDLS Fuses
Master Electrical Component List
Control Module References
CNSTR/VENT, CLSTR/HVAC, INT/LAMP, ONSTAR, and RDO Fuses
ABS MOTOR, AC/DC INVRTR, AUX/PWR 12VDC, FRT WSW, and PCM ETC Fuses
B+ Bus
CNSTR/VENT, CLSTR/HVAC, INT/LAMP, ONSTAR, and RDO Fuses