GM Service Manual Online
For 1990-2009 cars only

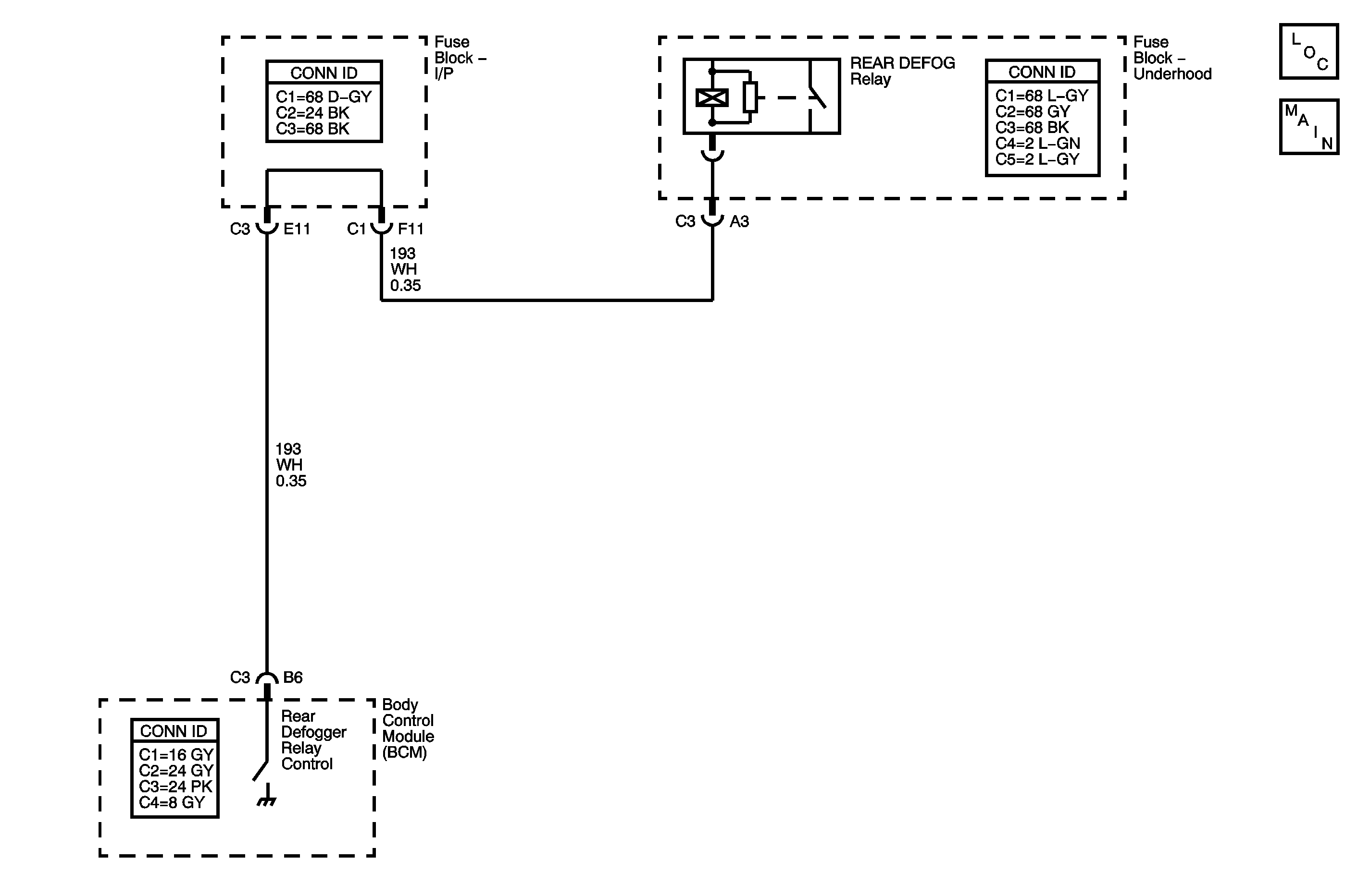
Object Number: 1239237  Size: MF
Master Electrical Component List
Defogger Schematic

Circuit Description

The body control module (BCM) monitors the rear defogger switch input. When the rear defogger is turned on, rear defog switch closed, the BCM grounds the coil side of the rear defog relay. This will energize the relay activating the rear defogger.

The first time that the rear defogger is activated in an ignition cycle, the rear defogger will remain on for 15 minutes, or until the ignition switch is turned off. If the rear defogger is activated again during the same ignition cycle, the rear defogger will remain on for 7 1/2 minutes, or until the ignition switch is turned off.

DTC Descriptor

This diagnostic procedure supports the following DTC:

DTC B0286 Electronic Rear Defrost Circuit High

Conditions for Running the DTC

The ignition is in RUN.

Conditions for Setting the DTC

    • The rear defogger relay control circuit is shorted to battery voltage.
    • The BCM is commanding the rear defog system to the on state.

Actions Taken When the DTC Sets

The rear defog will not operate

Conditions for Clearing the DTC

    • This DTC will change from current to history when the fault is no longer present.
    • A history DTC will clear after 100 consecutive ignition cycles if the condition for the malfunction is no longer present.

Step

Action

Yes

No

Schematic Reference: Defogger Schematics

Connector End View Reference: Master Electrical Component List in Wiring Systems

1

Did you perform the Diagnostic System Check - Vehicle?

Go to Step 2

Go to Diagnostic System Check - Vehicle in Vehicle DTC Information

2

  1. Turn ON the ignition, with the engine OFF.
  2. With a scan tool select from special functions, the Rear Defogger Relay from the body control module (BCM) output controls.
  3. Command the REAR DEFOG relay ON and OFF.

Do you hear a click when you command the REAR DEFOG relay ON and OFF?

Go to Testing for Intermittent Conditions and Poor Connections in Wiring Systems

Go to Step 3

3

  1. Turn OFF the ignition.
  2. Disconnect the REAR DEFOG relay.
  3. Turn ON the ignition, with the engine OFF.
  4. Connect a test lamp between the rear defog relay control circuit of the REAR DEFOG relay coil and the ignition 1 voltage circuit of the REAR DEFOG relay coil.
  5. With a scan tool, command the REAR DEFOG relay ON and OFF .

Does the test lamp turn ON and OFF with each command?

Go to Step 5

Go to Step 4

4

Test the rear defog relay control circuit of the REAR DEFOG relay for a short to voltage. Refer to Circuit Testing and Wiring Repairs in Wiring Systems.

Did you find and correct the condition?

Go to Step 9

Go to Step 6

5

Inspect for poor connections at the REAR DEFOG relay. Refer to Testing for Intermittent Conditions and Poor Connections and Connector Repairs in Wiring Systems.

Did you find and correct the condition?

Go to Step 9

Go to Step 7

6

Inspect for poor connections at the harness connector of the BCM. Refer to Testing for Intermittent Conditions and Poor Connections and Connector Repairs in Wiring Systems.

Did you find and correct the condition?

Go to Step 9

Go to Step 8

7

Replace the REAR DEFOG relay. Refer to Relay Replacement in Wiring Systems.

Did you complete the replacement?

Go to Step 9

--

8

Replace the BCM. Refer to Control Module References in Computer/Integrating Systems for replacement, setup, and programming.

Did you complete the replacement?

Go to Step 9

--

9

  1. Use the scan tool in order to clear the DTCs.
  2. Operate the vehicle within the Conditions for Setting the DTC as specified in the supporting text.

Does the DTC reset?

Go to Step 2

System OK