GM Service Manual Online
For 1990-2009 cars only
Makes
🢒
Saturn
🢒
2007
🢒
VUE - FWD
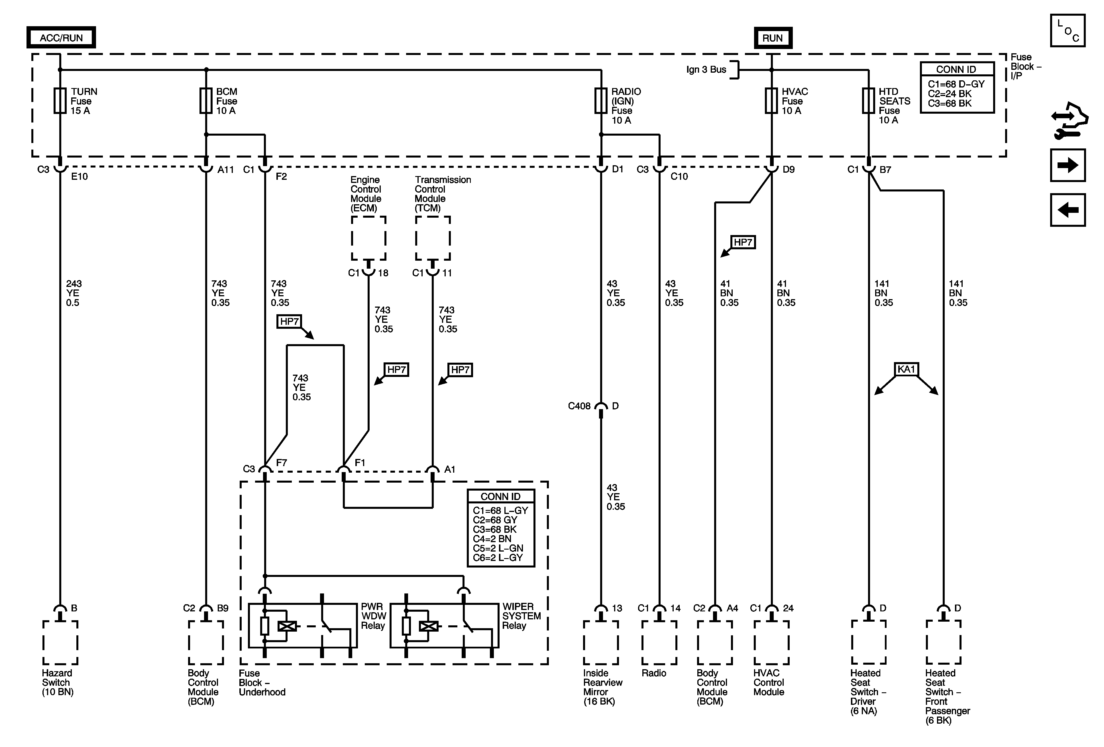
🢒 TURN, BCM, RADIO (IGN), HVAC, and HTD SEATS Fuse
TURN, BCM, RADIO (IGN), HVAC, and HTD SEATS Fuse
TURN, BCM, RADIO (IGN), HVAC, and HTD SEATS Fuses
Master Electrical Component List
Control Module References
IGN 1, BCM (IGN), AIR BAG, EPS, and CRUISE Fuses
BACKUP and PWR TRAIN Fuses (HP7)
IGN Fuse and Ignition Switch Circuits