GM Service Manual Online
For 1990-2009 cars only
Makes
🢒
Buick
🢒
2000
🢒
LeSabre
🢒 Instrument Panel Cluster (DIC Messages)
Instrument Panel Cluster (DIC Messages)
Instrument Panel Cluster (DIC Messages)
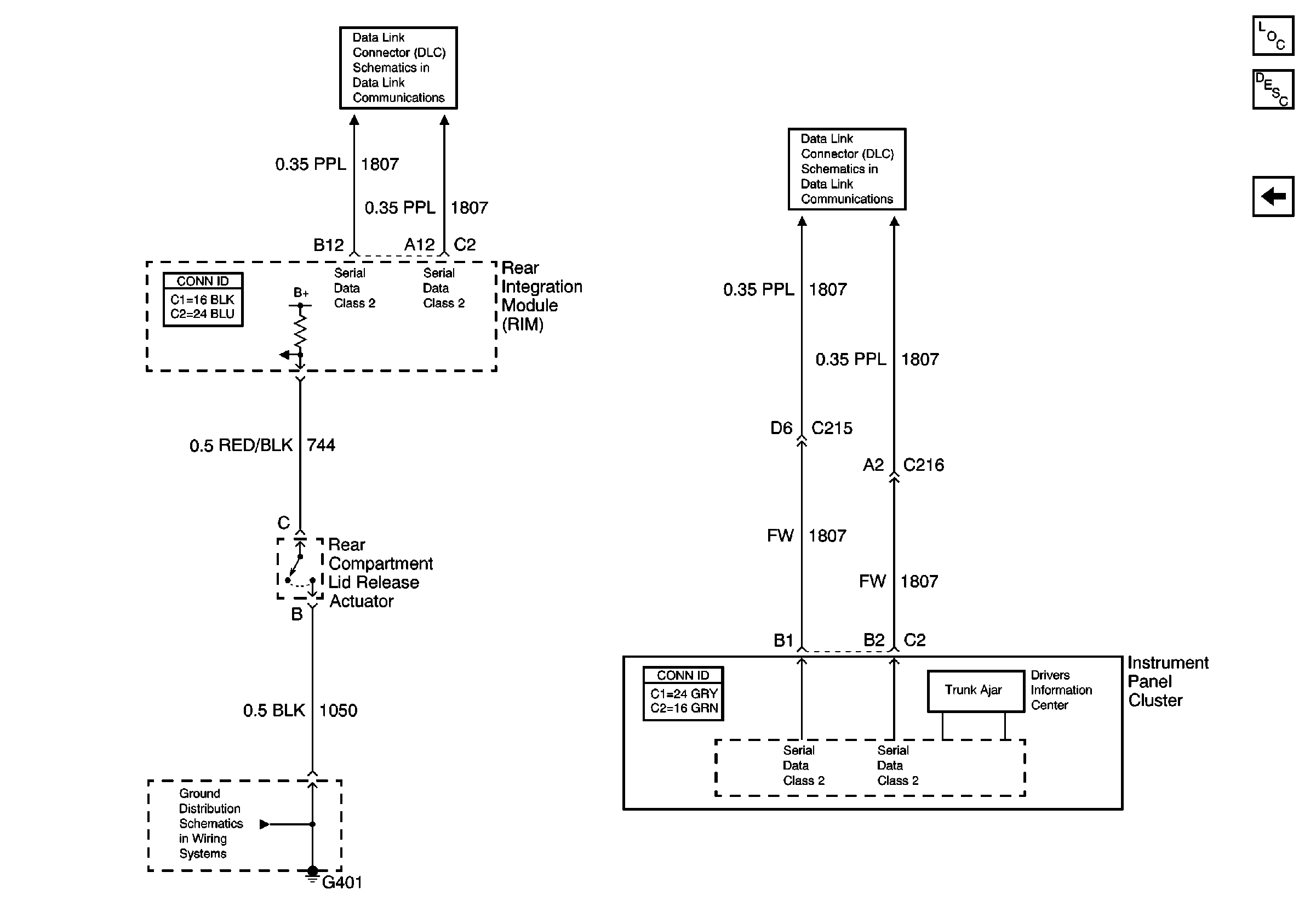
Body Rear End Components
Instrument Cluster Description
Rear Compartment Lid Release
Serial Data Class 2
Serial Data Class 2
G401 (2 of 2)