GM Service Manual Online
For 1990-2009 cars only
Makes
🢒
Cadillac
🢒
2005
🢒
CTS
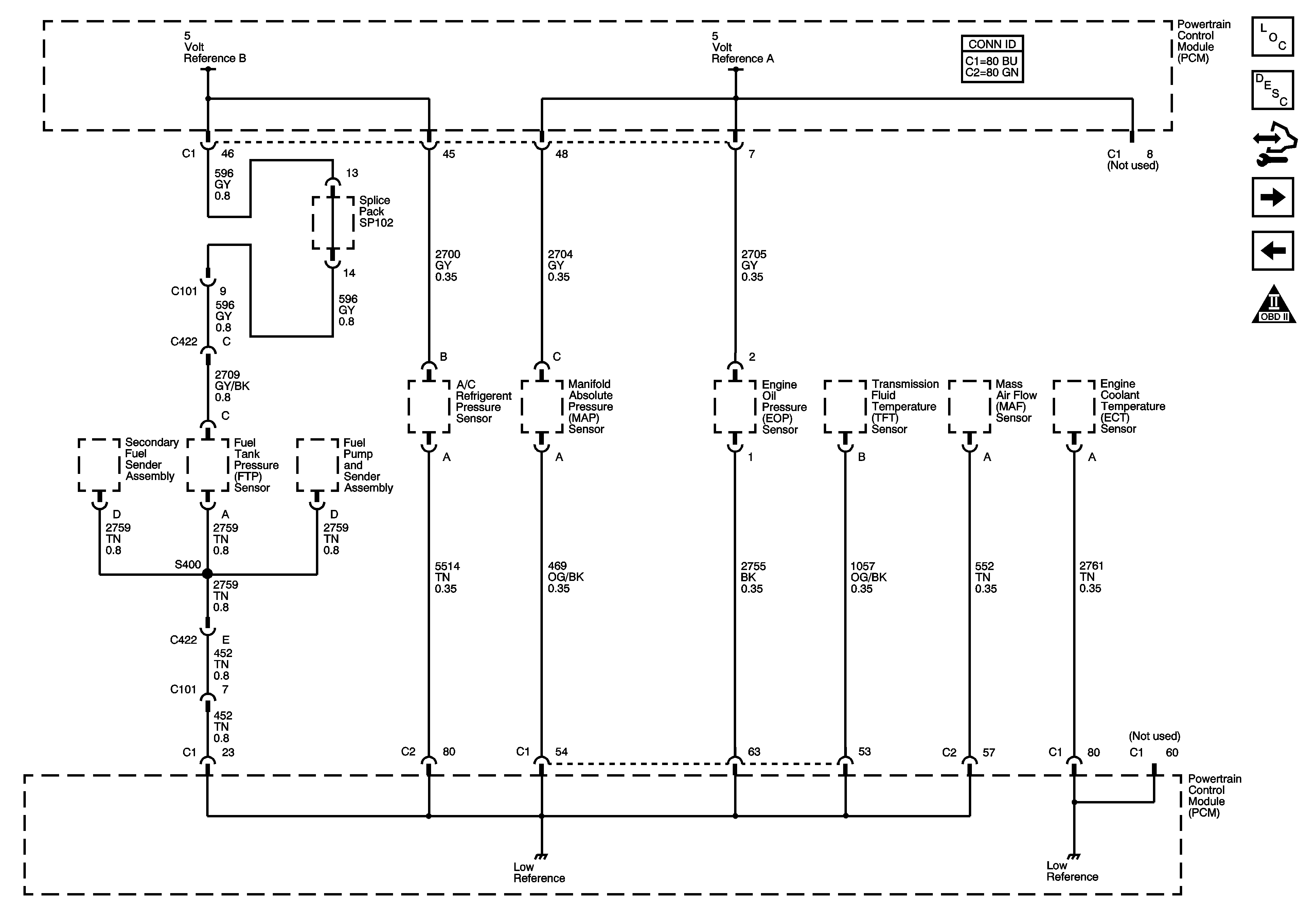
🢒 Engine Data Sensors - 5 volt and Low References Busses
Engine Data Sensors - 5 volt and Low References Busses
Engine Data Sensors - 5-Volt and Low Reference Buses
Master Electrical Component List
Powertrain Control Module Description
Control Module References
Engine Data Sensors - MAP, ECT, MAF and IAT Sensors
Power, Ground, Serial Data, DIC and Indicator
Engine Controls Schematic Icons