GM Service Manual Online
For 1990-2009 cars only
Makes
🢒
Cadillac
🢒
2006
🢒
DTS
🢒
Vehicle Control Systems
🢒
Vehicle DTC Information
🢒 Wiper/Washer Schematics
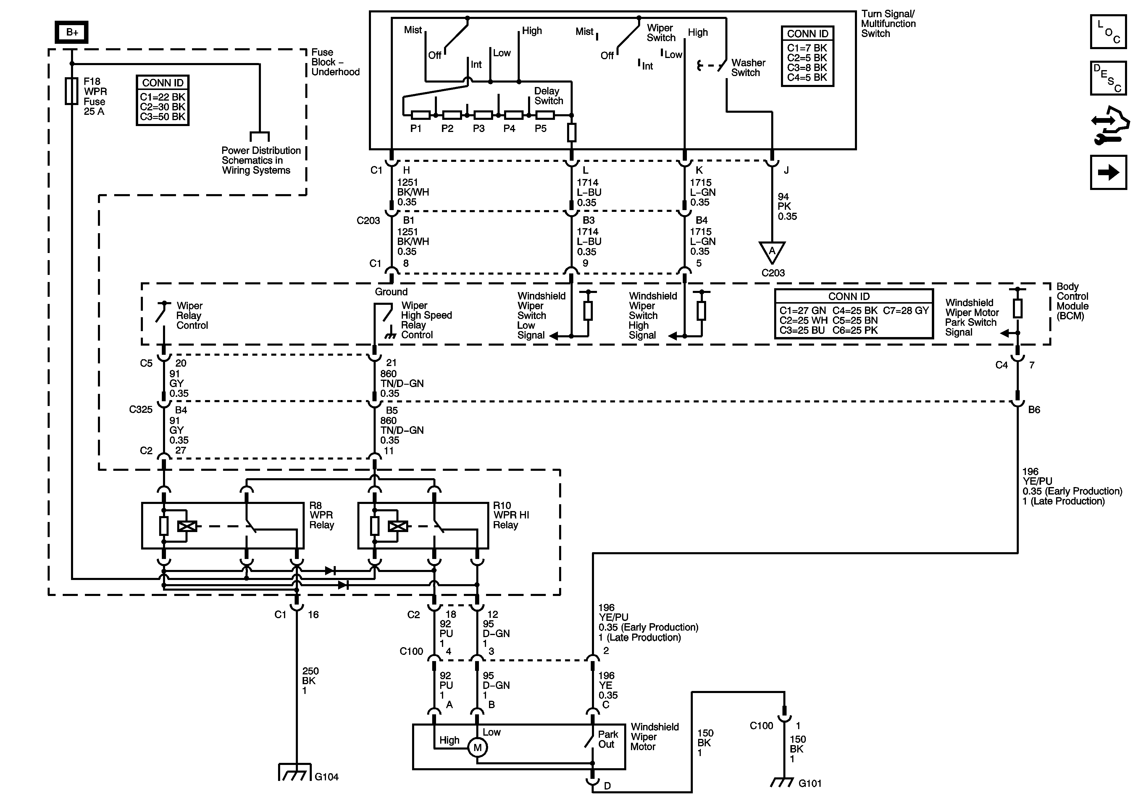
Figure
1:
Wiper System Power and Ground
Master Electrical Component List
Wiper/Washer System Description and Operation (Wipers and Washers)
Control Module References
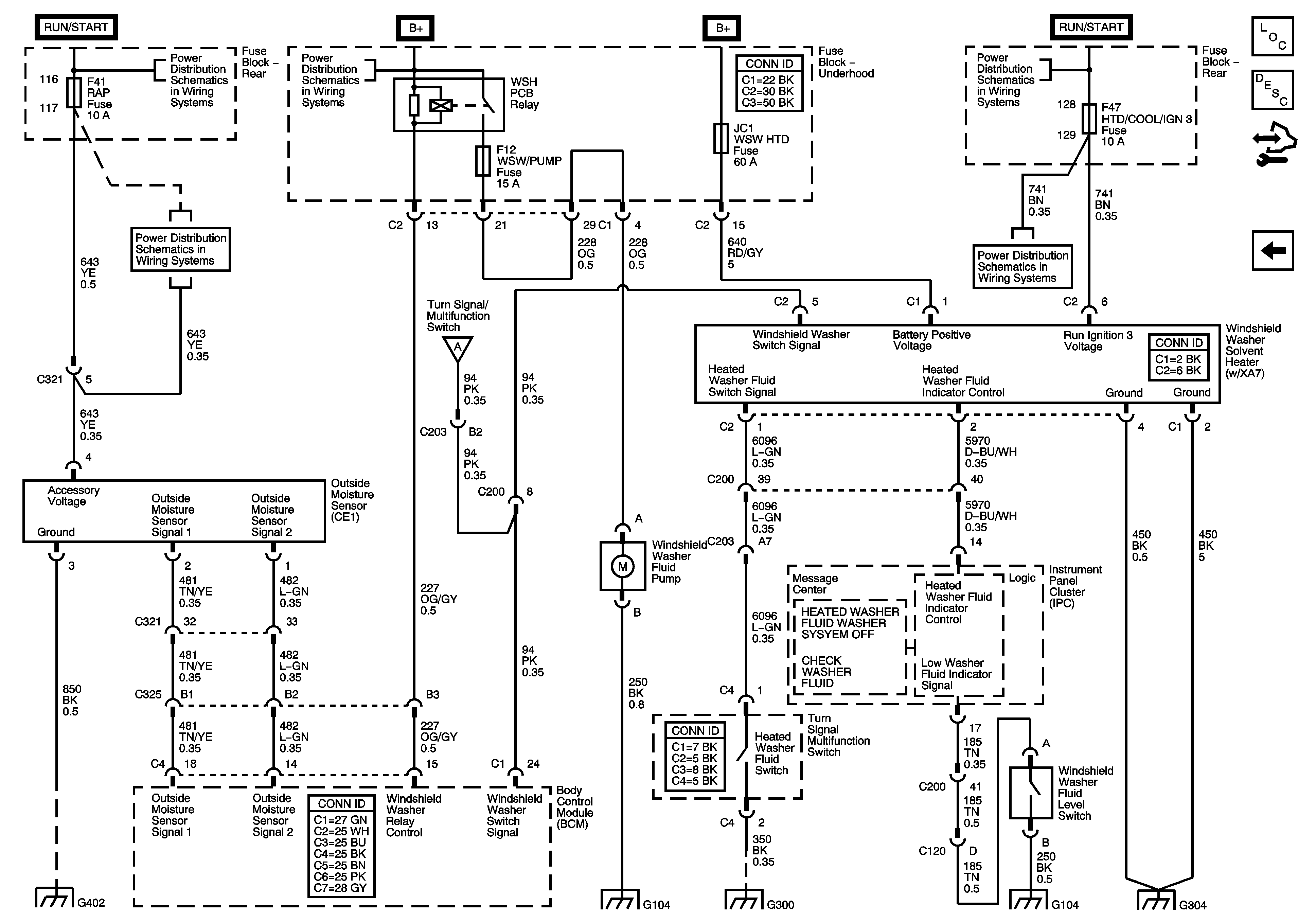
Outside Moisture Sensor and Windshield Washer Solvent Heater
Underhood Fuse Block B+ Bus
Outside Moisture Sensor and Windshield Washer Solvent Heater
G104
Figure
2:
Outside Moisture Sensor and Windshield Washer Solvent Heater
Master Electrical Component List
Wiper/Washer System Description and Operation (Heated Washer System)
Control Module References
Wiper System Power and Ground
Rear Fuse Block B+ Bus
Rear Fuse Block - RAP Relay, CTSY/RF TRN, S/ROOF, SHFTR SOL, RAP, REAR SEAT LUM Fuses
Underhood Fuse Block B+ Bus
Wiper System Power and Ground
Rear Fuse Block - RUN Relay, REAR HVAC, HTD STR, HTD/COOL/IGN3, BCM LOGIC Fuses
Rear Fuse Block B+ Bus
G402
G104
G300
G104
G304