GM Service Manual Online
For 1990-2009 cars only
Makes
🢒
Cadillac
🢒
2007
🢒
DTS
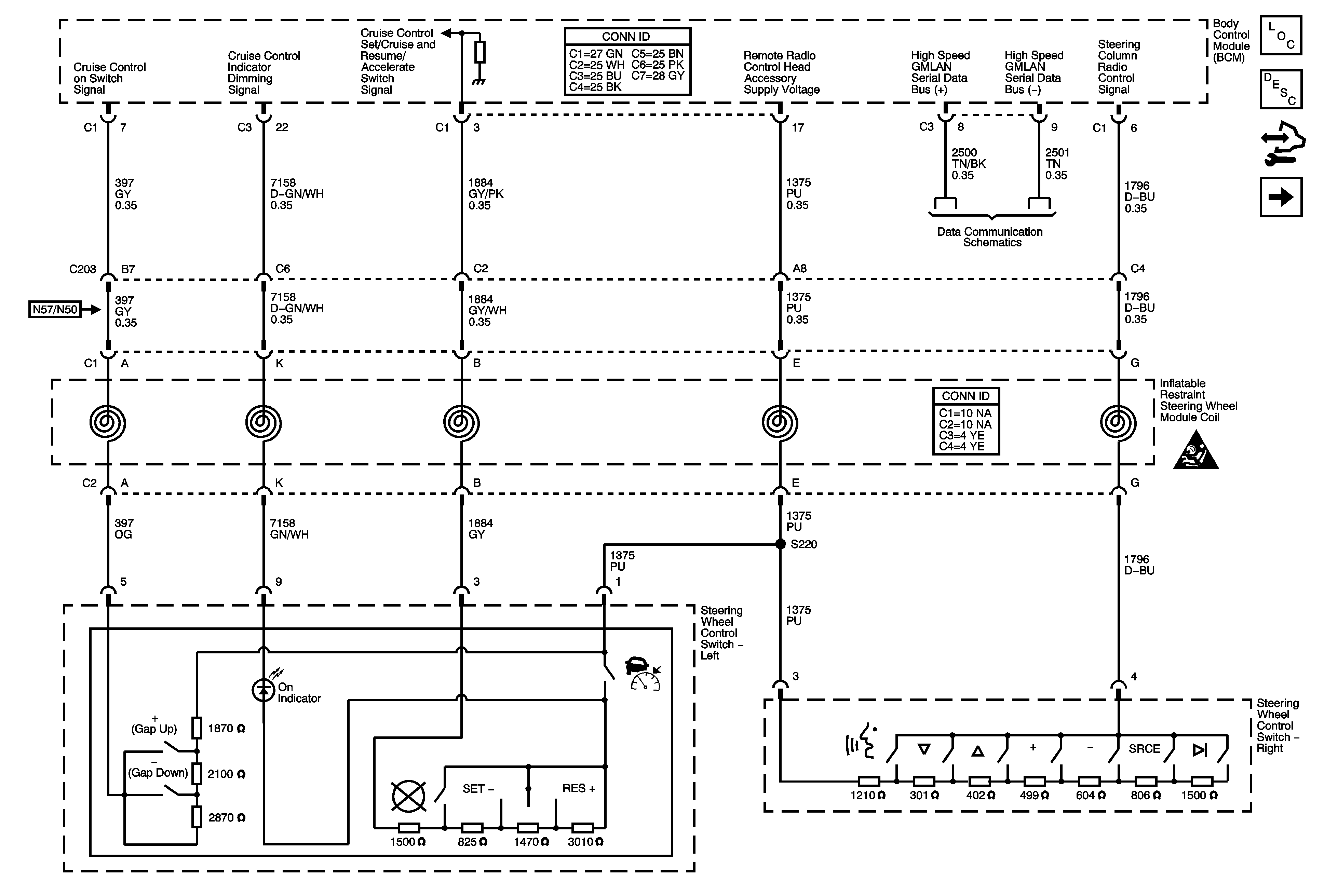
🢒 ON/OFF Switch
ON/OFF Switch
Cruise Control ON/OFF Switch
Master Electrical Component List
Cruise Control Description and Operation (Conventional Cruise Control)
Control Module References
Distance Sensing Cruise Control Module
High Speed Serial Data
Cruise Control Schematic Icons