GM Service Manual Online
For 1990-2009 cars only
Makes
🢒
Cadillac
🢒
2001
🢒
DeVille
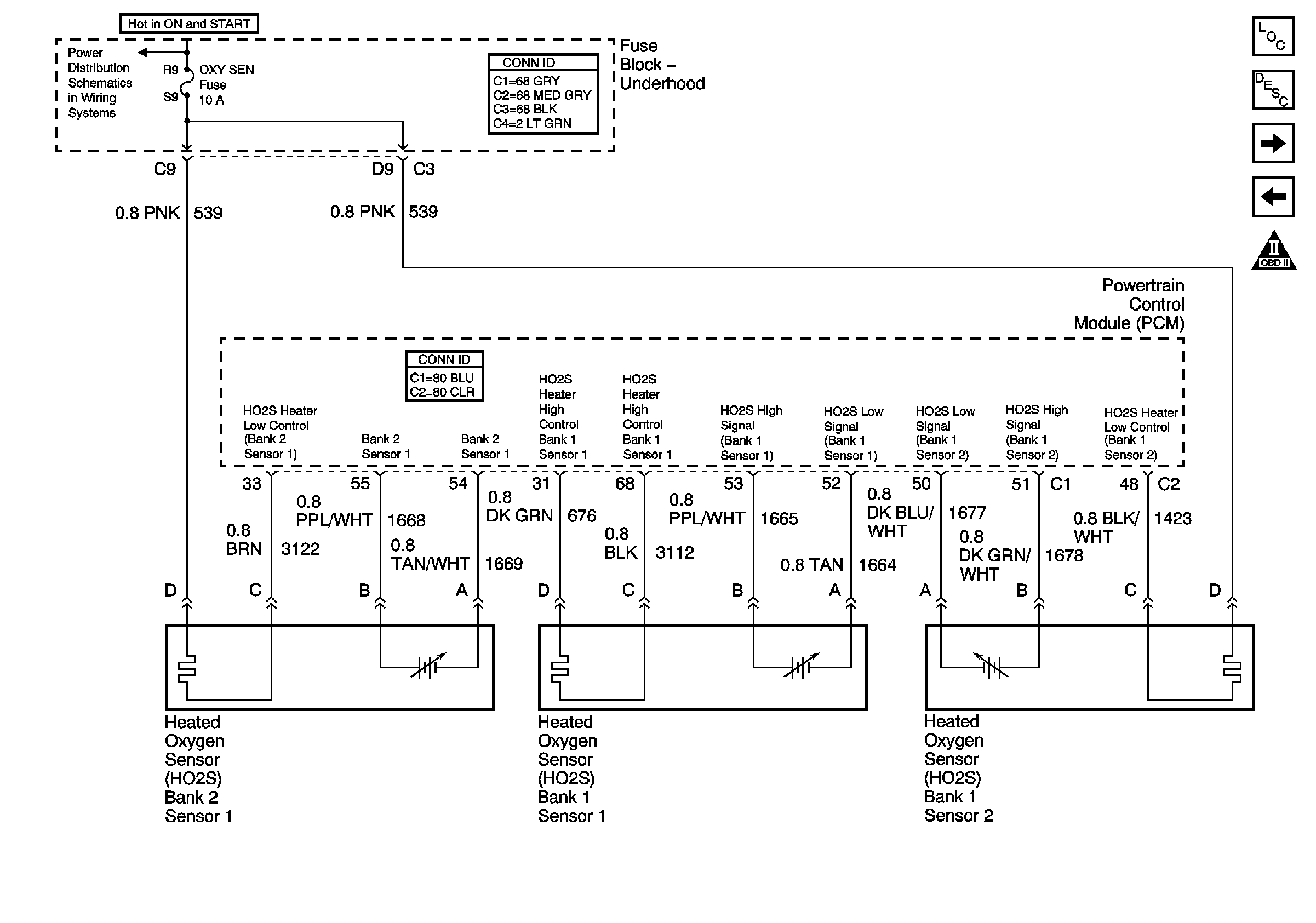
🢒 Heated Oxygen Sensors
Heated Oxygen Sensors
Heated Oxygen Sensors
Master Electrical Component List
Fuel System Description
EVAP Valves and EGR Valve
Engine and Fuel Tank Sensors
OBD II Symbol Description Notice
Oxy Sen, CR Cont, MDL Coil, Trans Fuses