GM Service Manual Online
For 1990-2009 cars only
Makes
🢒
Cadillac
🢒
2005
🢒
Escalade EXT
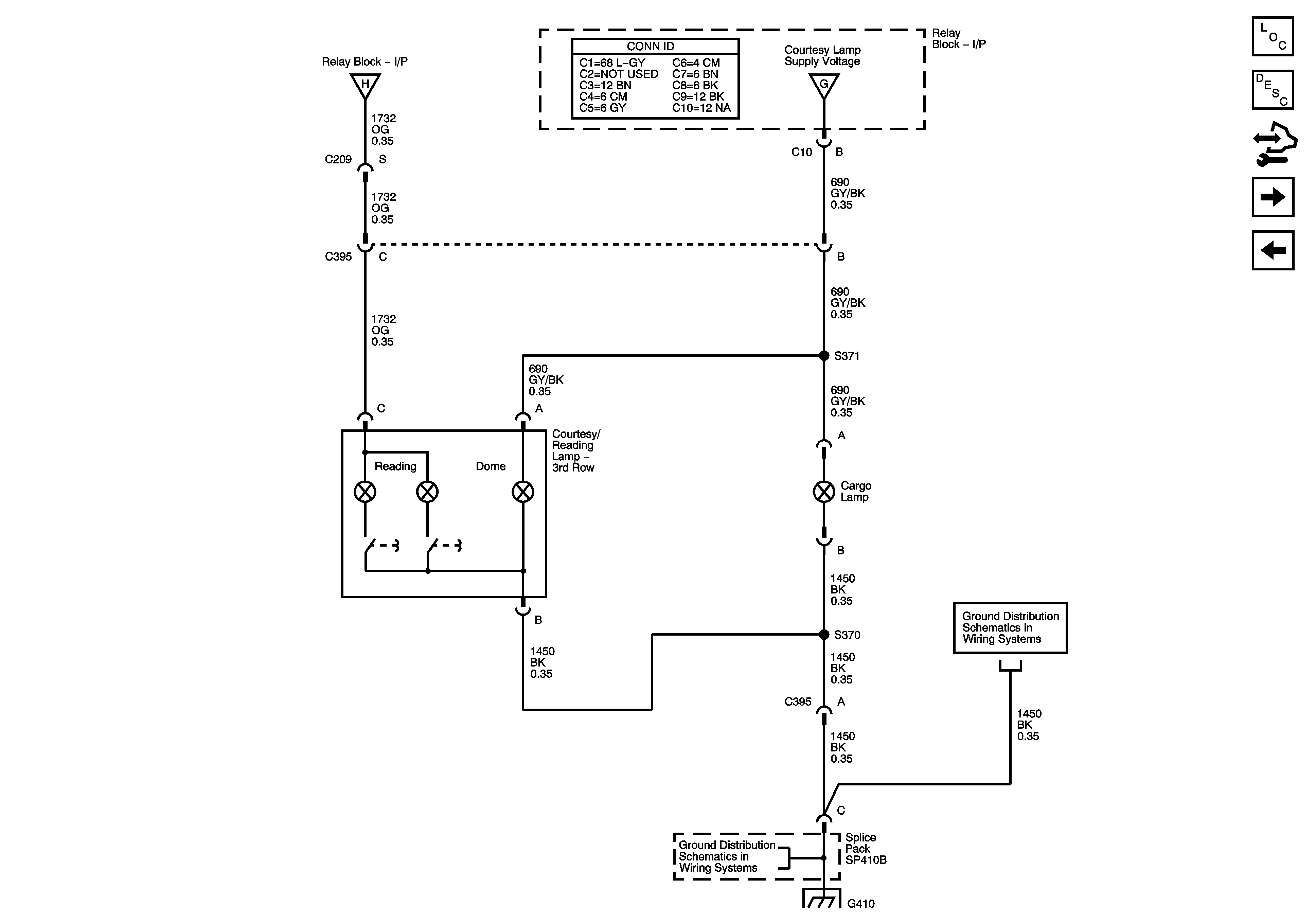
🢒 Interior Lamps - 3rd Row and Cargo - Escalade ESV w/ULT
Interior Lamps - 3rd Row and Cargo - Escalade ESV w/ULT
Interior Lamps - Escalade ESV w/ULT
Master Electrical Component List
Interior Lighting Systems Description and Operation
Control Module References
Door Switch Inputs and Door Courtesy Lamps
Interior Lamps - Suburban, Yukon XL, and Escalade ESV w/o ULT
Interior Lamps - Suburban, Yukon XL, and Escalade ESV w/o ULT
Interior Lamps - Suburban, Yukon XL, and Escalade ESV w/o ULT
G410 1 of 3
G410 1 of 3
G410 1 of 3