GM Service Manual Online
For 1990-2009 cars only
Makes
🢒
Cadillac
🢒
2006
🢒
Escalade EXT
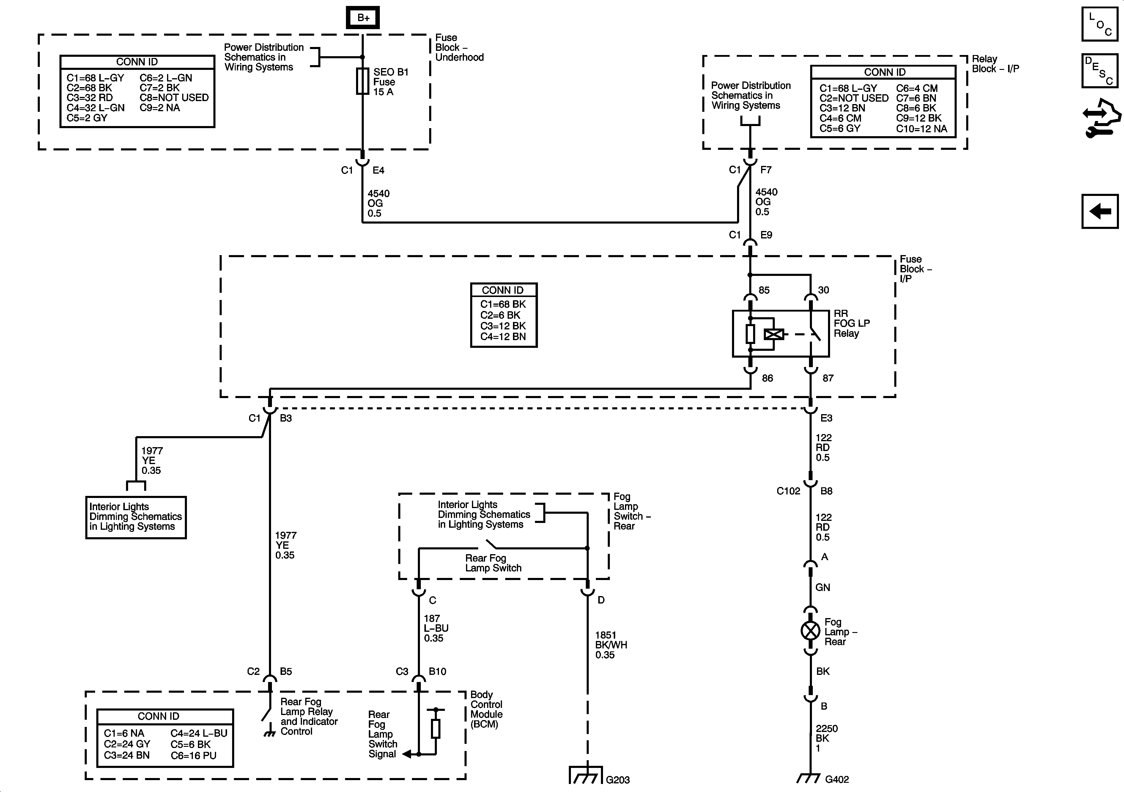
🢒 Rear - w/ VD1
Rear - w/ VD1
Rear - w/VD1
Master Electrical Component List
Exterior Lighting Systems Description and Operation
Control Module References
Front
B+ Bus - 1 of 2
IPC/DIC, LH HID, RH HID, SEO B1, SEO B2, and TBC BATT Fuses
G203 2 of 3
I/P Dimming Supply Voltage - 3 of 8
Dimming Control and LED Dimming Supply Voltage - 1 of 2