GM Service Manual Online
For 1990-2009 cars only
Makes
🢒
Cadillac
🢒
2006
🢒
Escalade EXT
🢒 DLC, Ground, Power and References
DLC, Ground, Power and References
DLC, Ground, Power and References
Master Electrical Component List
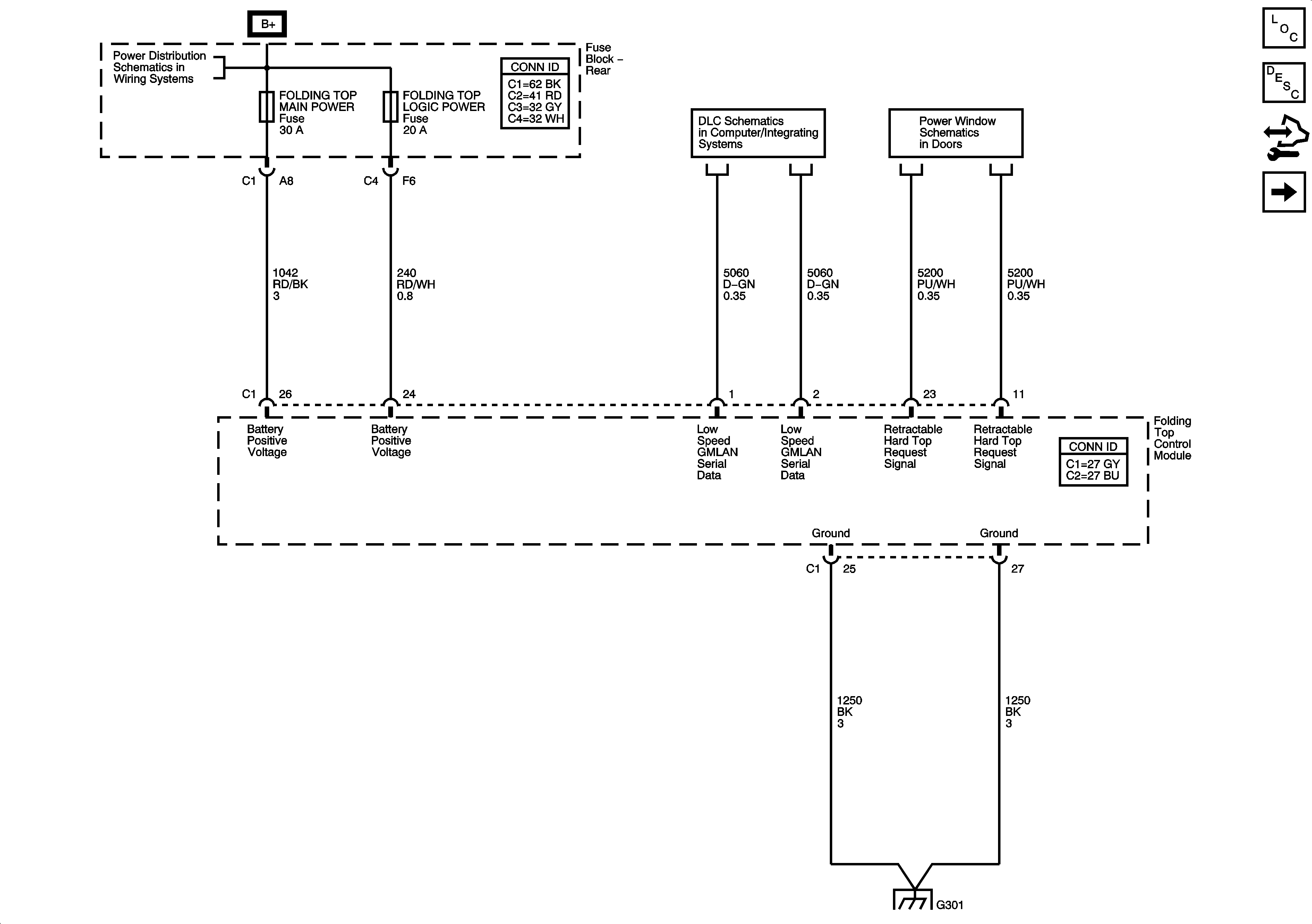
Power Folding Top Description and Operation
Control Module References
Sensors
Underhood Fuse Block RBEC 2, RUN RLY, Body Control Module (BCM), HVAC BLOWER HIGH Relay, RUN Relay, HVAC BLOWER, HVAC CTRL (IGN) Rear Fuse Block FUEL Relay, PARK LP Relay, TRUNK Relay, DRV ST, EMISSIO
Low Speed Serial Data
Front Window Motors - Convertible
G301