GM Service Manual Online
For 1990-2009 cars only
Makes
🢒
Cadillac
🢒
2008
🢒
Escalade EXT
🢒
Suspension
🢒
Automatic Level Control
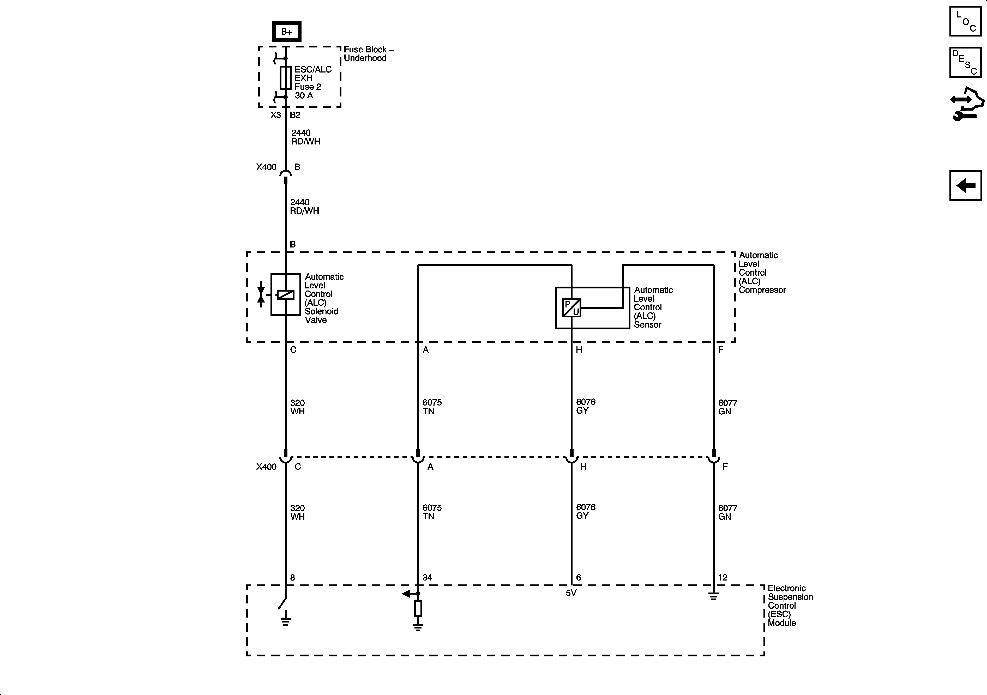
🢒 Automatic Level Control Schematics
Figure
1:
Compressor Controls
Master Electrical Component List
Automatic Level Control Description and Operation
Control Module References
Pressure Controls
RUN/CRANK Bus - AIRBAG IGN, MISC IGN and SEO/ALC Fuses
ALC/COMP, EAP, and LGM Fuses
G400
Figure
2:
Pressure Controls
Master Electrical Component List
Automatic Level Control Description and Operation
Control Module References
Compressor Controls
AMP, ELEC RUN BOARD, ESC/ALC EXH, EXP/BRK MDL, and TREC Fuses