GM Service Manual Online
For 1990-2009 cars only
Makes
🢒
Chevrolet
🢒
2000
🢒
Astro - 2WD
🢒 Fuel Controls
Fuel Controls
Fuel Controls
Engine Controls Components
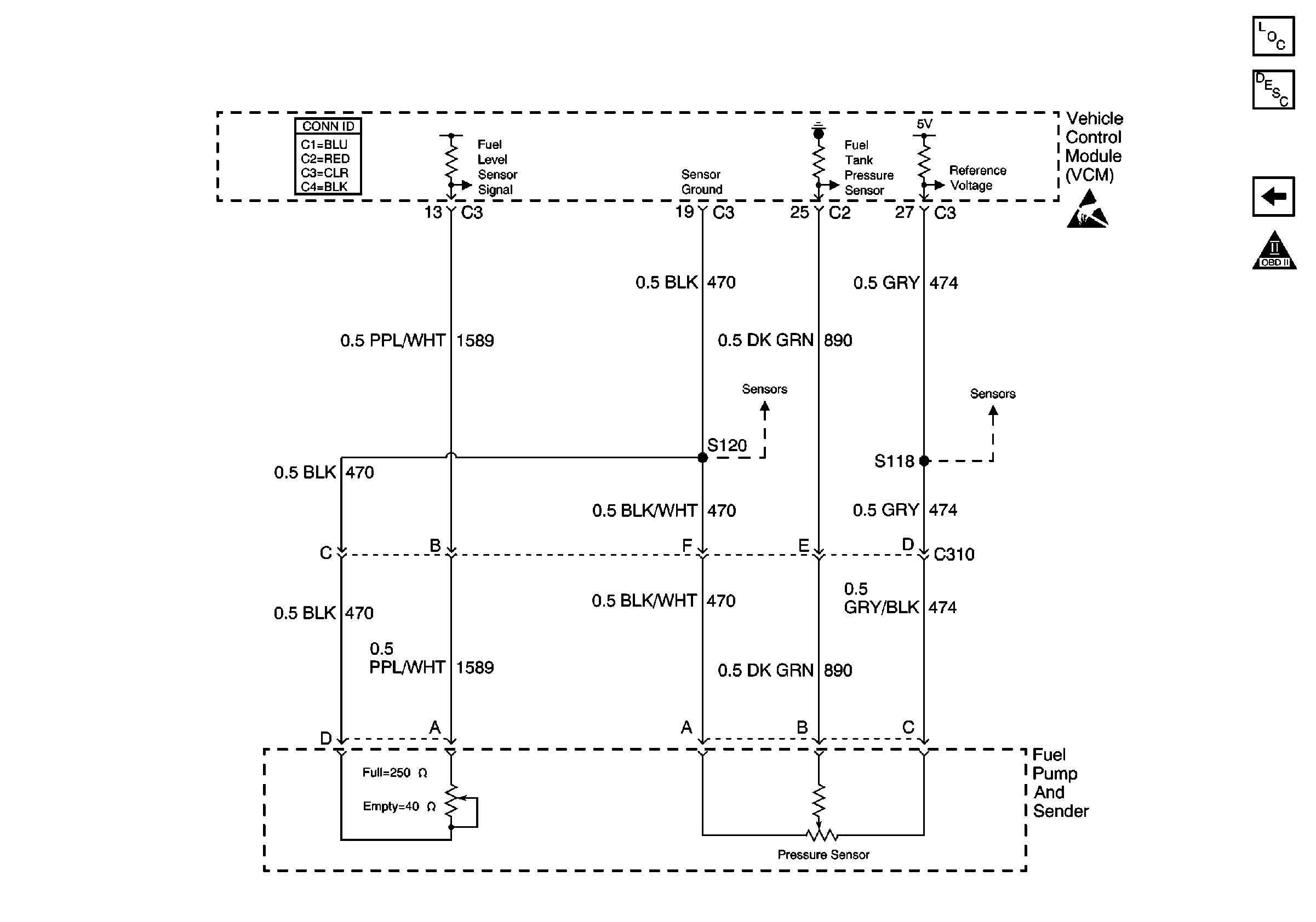
Fuel Supply Component Description
A/C Compressor Controls
OBD II Symbol Description Notice
Handling ESD Sensitive Parts Notice
Fuel Mixture Input Controls
Fuel Mixture Input Controls