GM Service Manual Online
For 1990-2009 cars only
Makes
🢒
Chevrolet
🢒
2001
🢒
Astro - 2WD
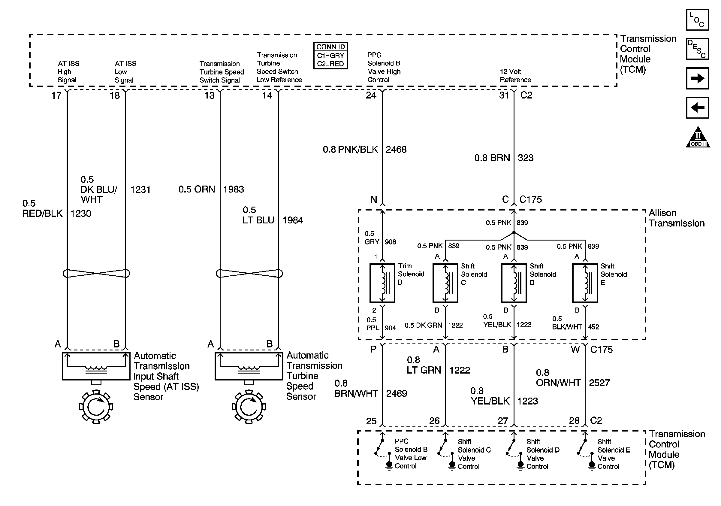
🢒 Speed Sensor and Valve Control Circuits
Speed Sensor and Valve Control Circuits
Speed Sensor and Valve Control Circuits
Master Electrical Component List
Electronic Component Description
TCC Control, Pressure Switch, and Temp Sensor Signal
Park/Neutral Position (PNP) Switch and TCM