GM Service Manual Online
For 1990-2009 cars only
Makes
🢒
Chevrolet
🢒
2002
🢒
Astro - 2WD
🢒 Charging
Charging
Charging
Master Electrical Component List
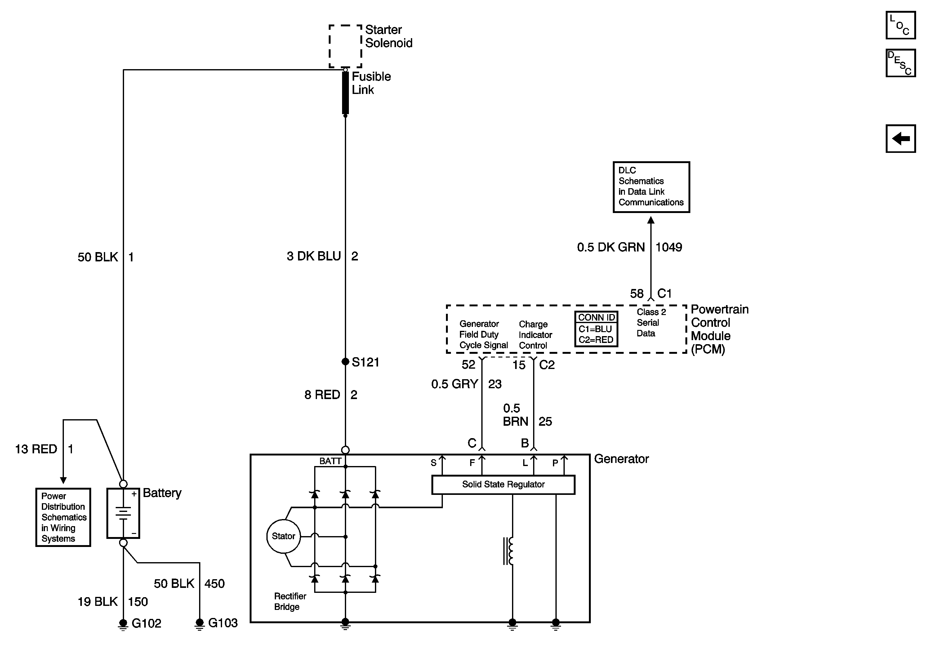
Charging System Description and Operation
Starting
Battery and Fuse Block - Underhood
Data Link Connector (DLC)