GM Service Manual Online
For 1990-2009 cars only
Makes
🢒
Chevrolet
🢒
2001
🢒
Blazer - 2WD
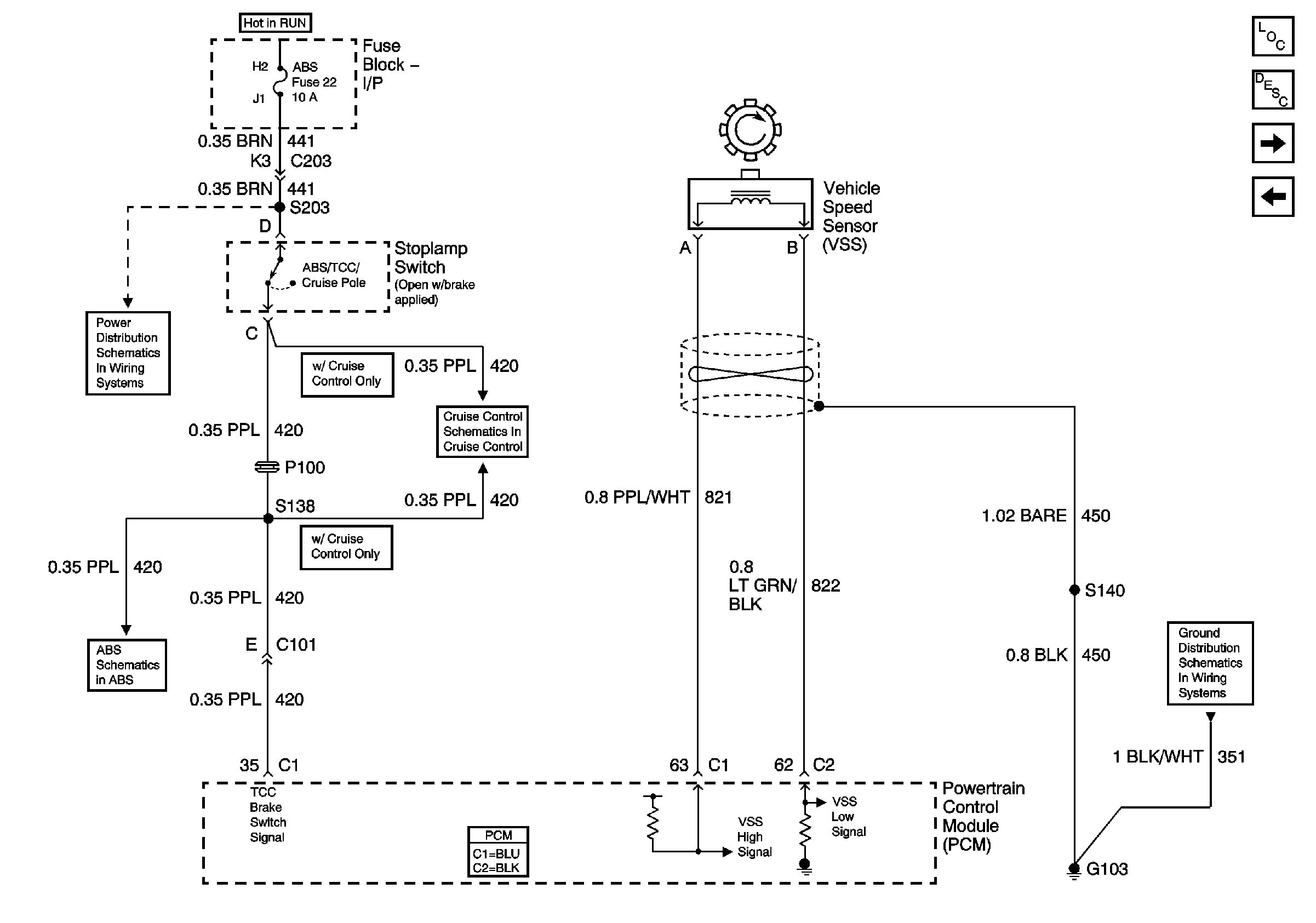
🢒 Brake Switch, VSS Inputs (2.2L)
Brake Switch, VSS Inputs (2.2L)
Brake Switch, VSS Inputs (2.2L)
Master Electrical Component List
Transmission Component and System Description
Valve Controls (4.3L)
Switch Inputs and PNP Switch (2.2L)
RR WPR, FRT WPR and ABS Fuses
Power and Ground
Clutch Pedal Position Switch, Stoplamp Switch, PCM and Cruise Control Module
G103 and G105 (2.2 L)