GM Service Manual Online
For 1990-2009 cars only
Makes
🢒
Chevrolet
🢒
2002
🢒
Chevy C Silverado - 2WD
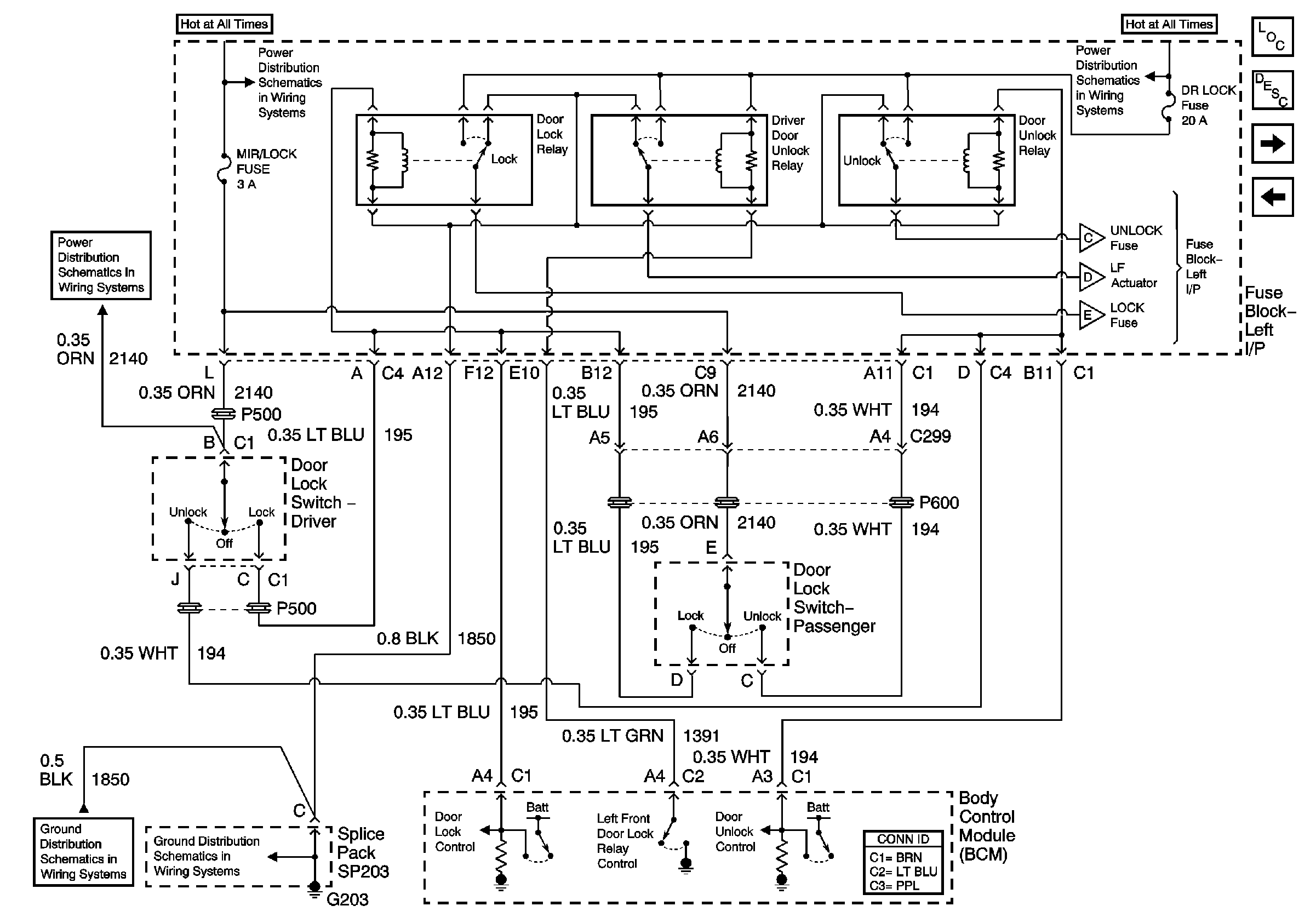
🢒 Power, Ground, and Switches - Uplevel Crew Cab
Power, Ground, and Switches - Uplevel Crew Cab
Power, Ground, and Switches - Uplevel Crew Cab
Master Electrical Component List
Power Door Locks Description and Operation
Actuators - Uplevel Crew Cab
Actuators - Base Crew Cab
B+ Bus Bar
B+ Bus Bar
Actuators - Uplevel Crew Cab
Actuators - Uplevel Crew Cab
Actuators - Uplevel Crew Cab
G203 - 1 of 3
G203 - 1 of 3