GM Service Manual Online
For 1990-2009 cars only
Makes
🢒
Chevrolet
🢒
2007
🢒
Colorado Pickup - 2WD
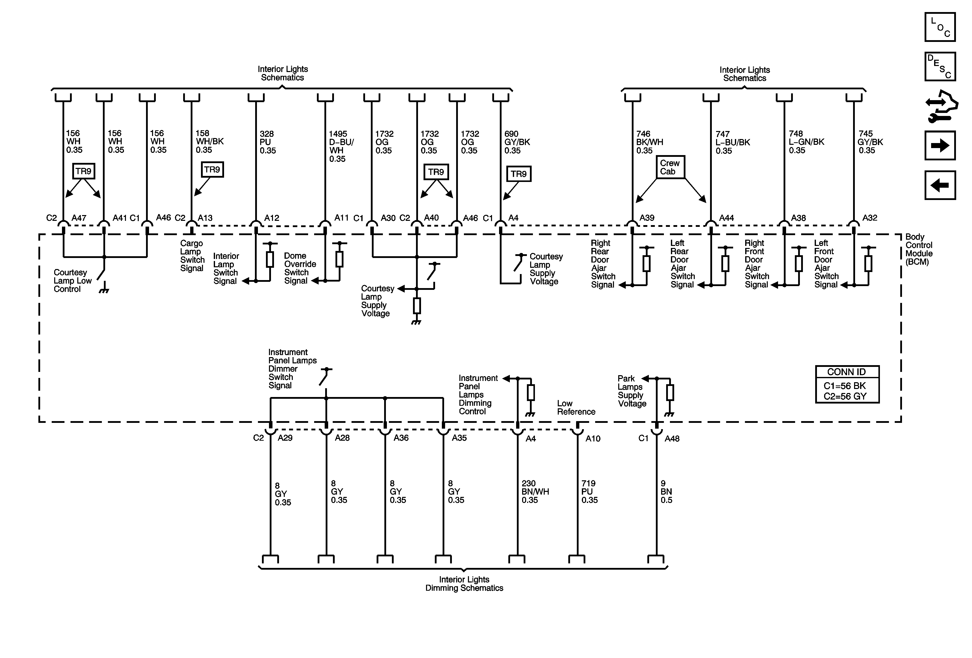
🢒 Subsystem References to Interior Lights and Interior Lights Dimming Systems
Subsystem References to Interior Lights and Interior Lights Dimming Systems
Subsystem References to Interior Light and Interior Lights Dimming Systems
Master Electrical Component List
Body Control System Description and Operation
Body Control Module Programming and Setup
Lighting System Reference
Subsystem References to Theft, Horn, Seat Belt, Outside Mirror, Power Moding, Brake Warning, ABS, and Wiper/Washer
Inside Rearview Mirror, Dome Lamp, Footwell Lamps, and Cargo Lamp
Door Jamb Switches
Interior Lights Dimming Schematics