GM Service Manual Online
For 1990-2009 cars only
Makes
🢒
Chevrolet
🢒
2008
🢒
Optra
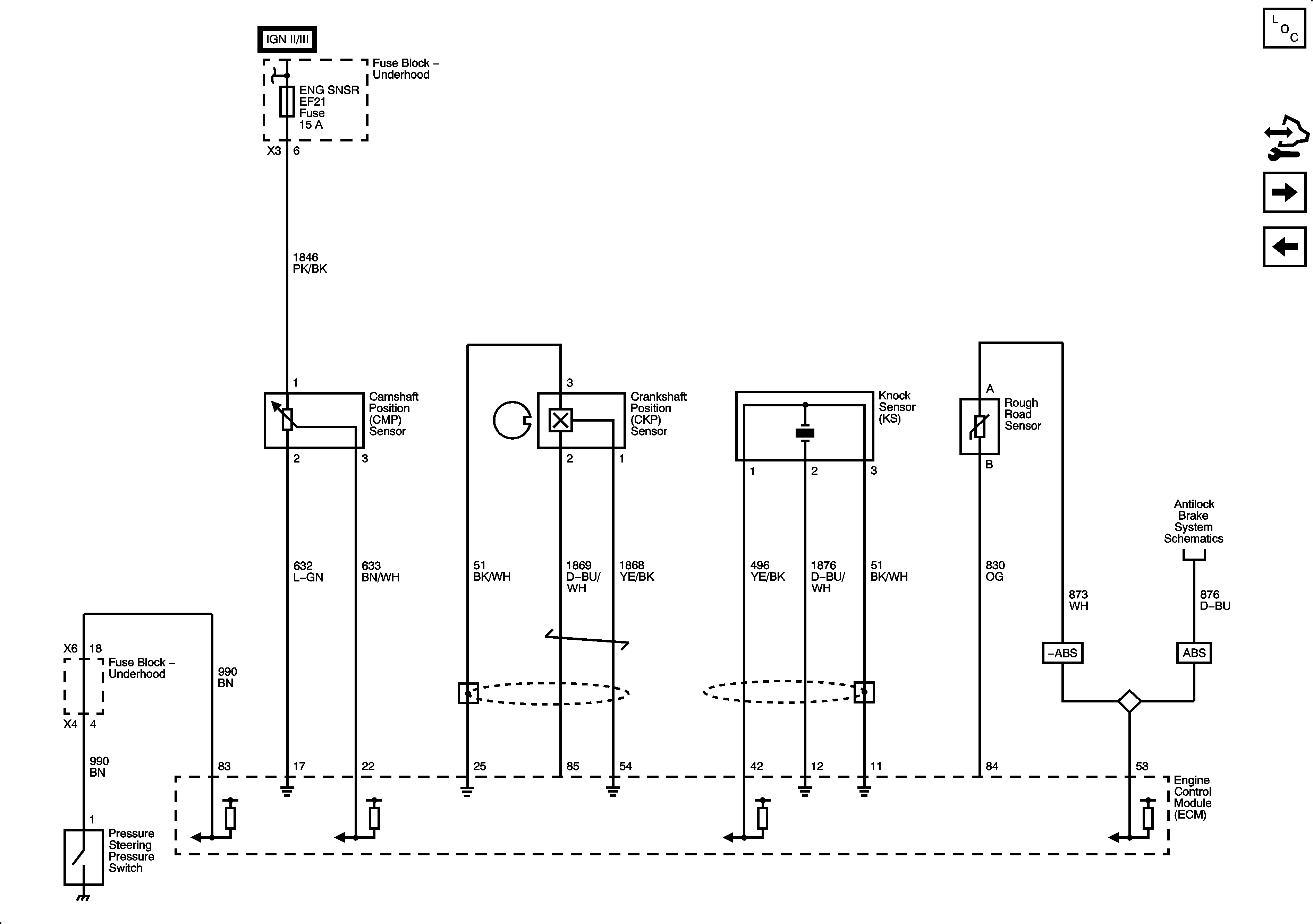
🢒 CMP, CKP, Knock, Rough Road Sensors, Power Steering Pressure Switch
CMP, CKP, Knock, Rough Road Sensors, Power Steering Pressure Switch
CMP, CKP, Knock, Rough Road Sensors, Power Steering Pressure Switch
Master Electrical Component List
Control Module References
Main Throttle Intake Actuator (MTIA)
Ignition System
Fuse Block - Underhood B+ Bus, 1 of 3
Power, Ground, Wheel Speed Sensors