GM Service Manual Online
For 1990-2009 cars only
Makes
🢒
Chevrolet
🢒
2000
🢒
S10 Pickup - 2WD
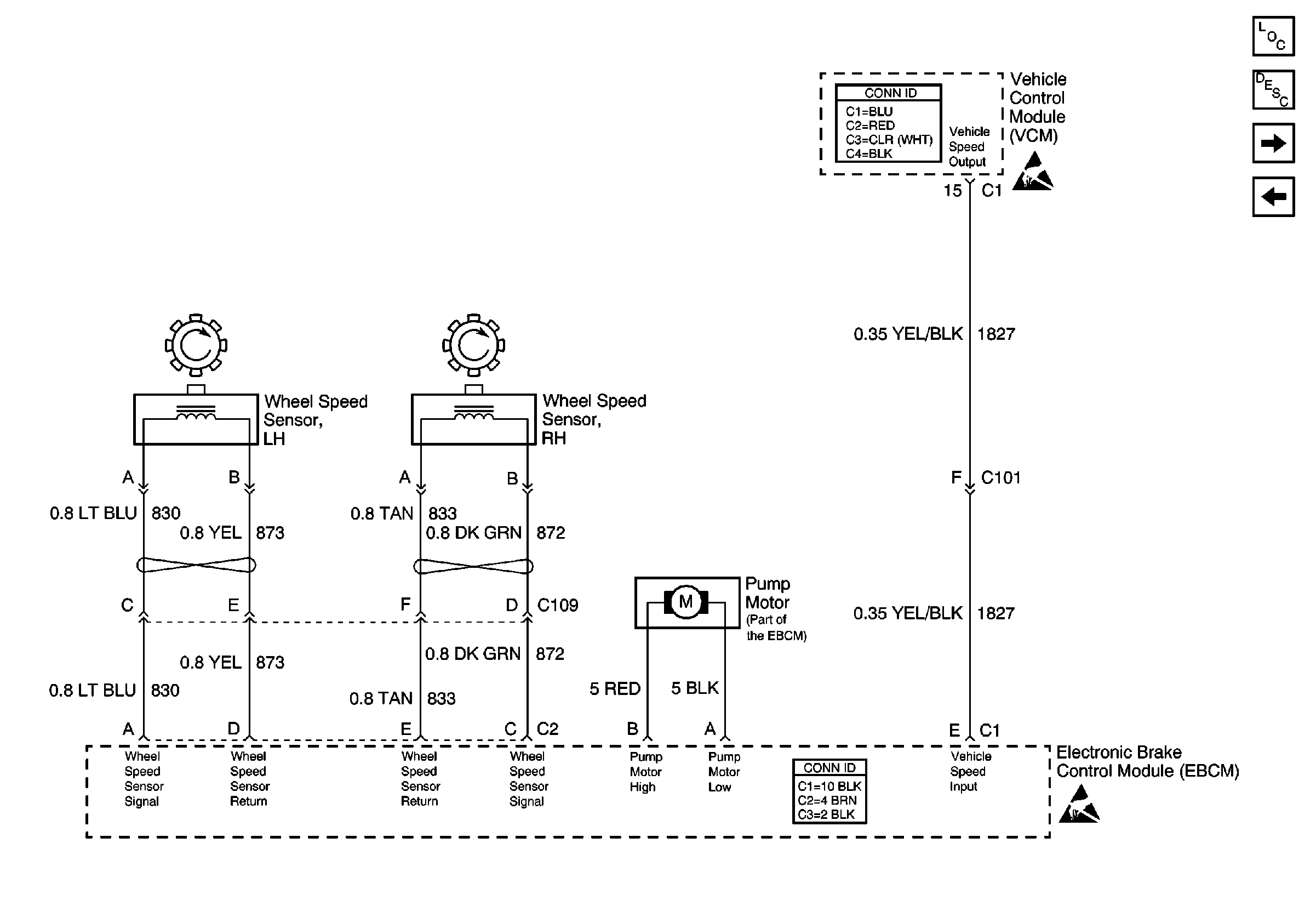
🢒 Speed Sensor Signals (310 ABS)
Speed Sensor Signals (310 ABS)
Speed Sensor Signals (310 ABS)
ABS Components
ABS Operation
Power and Ground (325 ABS)
Class 2 Communication (310 ABS)
VCM Connector End Views
Handling ESD Sensitive Parts Notice
Antilock Brake System Connector End Views
Handling ESD Sensitive Parts Notice