GM Service Manual Online
For 1990-2009 cars only
Makes
🢒
Chevrolet
🢒
2005
🢒
SSR
🢒 Heated Mirrors
Heated Mirrors
Heated Mirrors
Master Electrical Component List
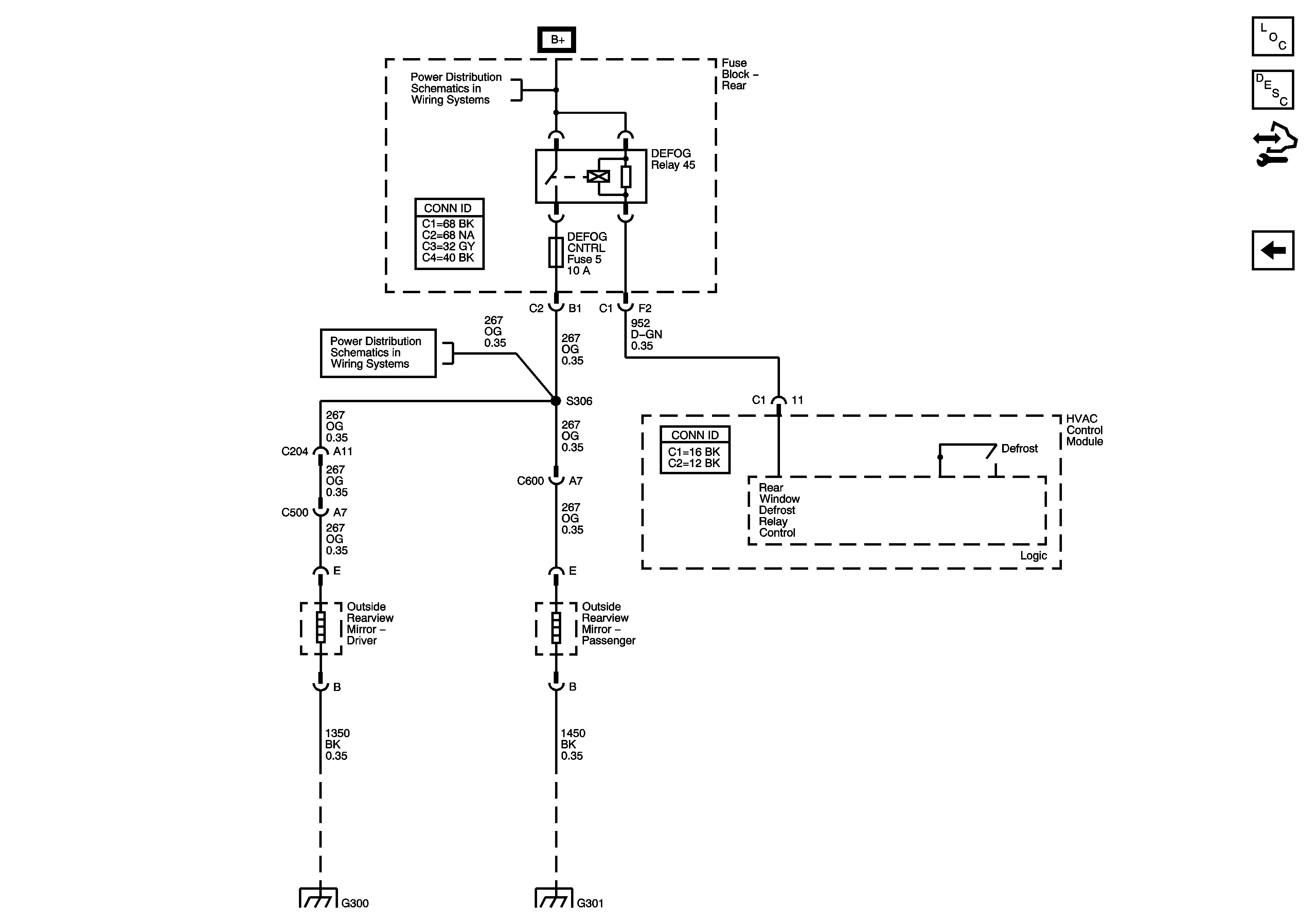
Outside Mirror Description and Operation Heated Mirrors
Control Module References
Power Mirrors
B+ Bus - Rear Fuse Block
DEFG CONT, DR SEAT MOD, HVAC B DD UNLOCK, R/DEFG, RDO, and UGDO Fuses
G300
G301, G302