GM Service Manual Online
For 1990-2009 cars only
Makes
🢒
Chevrolet
🢒
2005
🢒
SSR
🢒 Manual Transmission Schematics
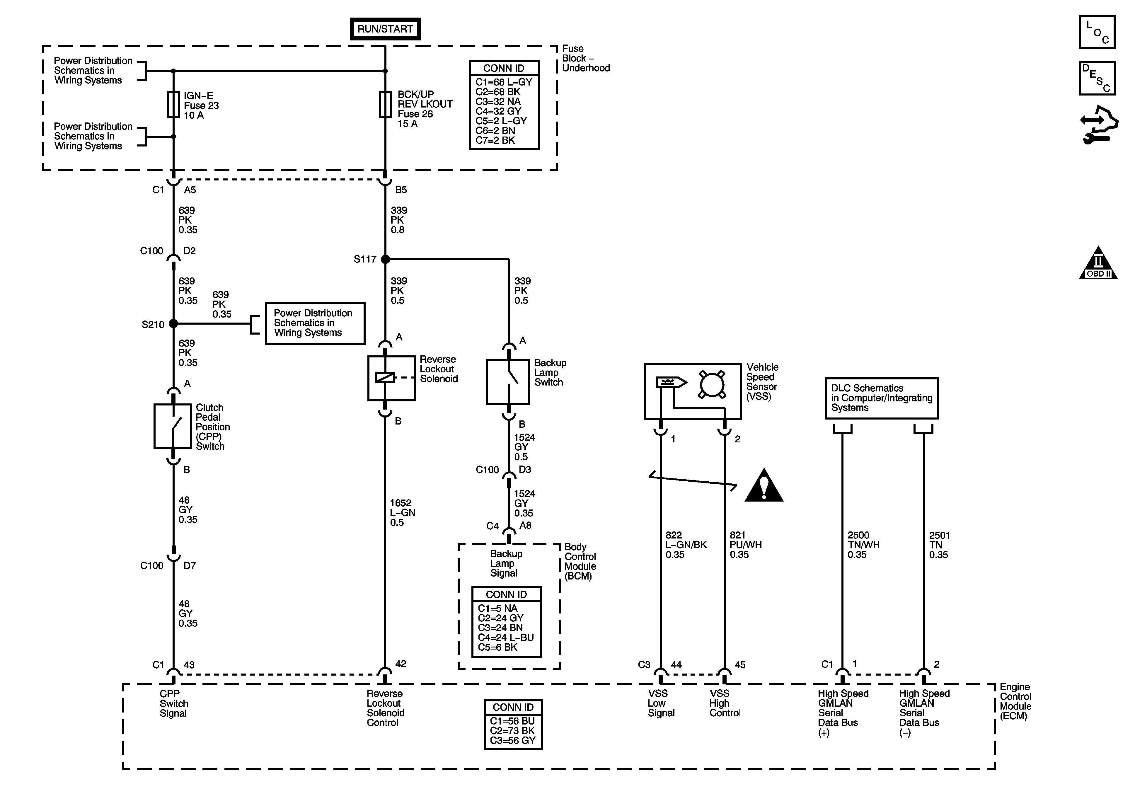
Manual Transmission Schematics
Master Electrical Component List
Manual Transmission Description and Operation
Control Module References
OBD II Symbol Description Notice
Ignition Switch - ACCY/RUN and RUN/START Bus Bar and IGN B Fuse
BCK/UP REV LK OUT, BTSI, and IGN E Fuses
BCK/UP REV LK OUT, BTSI, and IGN E Fuses
Data Link Connector Schematics
Manual Transmission Schematic Icons